Woning Wilgenlaan 10 Schagen

Wilgenlaan 10, 1741ZP Schagen

Ontvang updates voor Groeneweg

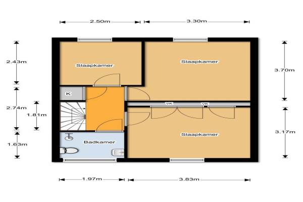
Het adres van deze woning uit 1971 is Wilgenlaan 10 te Schagen. Het pand heeft een oppervlakte van 110m² en een perceeloppervlakte van 167m² en heeft 5 kamers kamers waarvan 4 slaapkamers. De geschatte waarde van deze woning is € 199.000.

Bekijk alle woningen in Groeneweg

Gegevens van Eengezinswoning, tussenwoning

Bouwjaar
1971
Geschatte waarde
€ 199.000
Oppervlakte
110 m2
Inhoud
365 m3
Aantal kamers
5 kamers
Slaapkamers
4
Soort bouw
Bestaande bouw
Ligging
Aan drukke weg, in woonwijk en vrij uitzicht

Voorzieningen in de buurt

Binnenkijken bij Wilgenlaan 10 te Schagen

Meer meldingen in deze omgeving

112 melding
Maandag 10-11-2025 om 16:58
Esdoornstraat, 1741TL Schagen

112 melding
Maandag 10-11-2025 om 14:53
Iepenlaan, 1741TE Schagen

112 melding
Maandag 10-11-2025 om 13:47
Iepenlaan, Schagen

112 melding
Maandag 10-11-2025 om 12:03
Vlierstraat, 1741VK Schagen

112 melding
Maandag 10-11-2025 om 11:42
Acaciaplein, 1741XK Schagen

112 melding
Maandag 10-11-2025 om 11:09
Notenhof, 1741VT Schagen

112 melding
Maandag 10-11-2025 om 11:02
Abeelstraat, 1741TK Schagen

112 melding
Maandag 10-11-2025 om 10:41
Haagbeukstraat, 1741VB Schagen

Direct een e-mail ontvangen bij nieuwe meldingen in deze regio?

Meld je dan GRATIS aan voor de Oozo Alert service voor Groeneweg

Instellen

Meer nieuws in Groeneweg

Weten hoe eenvoudig het is om af te vallen? Zonder pillen en smeersels en zonder je in het zweet te werken!
Kijk op eenvoudig-afvallen.nl

© 2012 - 2025 OOZO.nl - info@oozo.nl - Gegevens verwijderen? | Disclaimer | Privacy statement