Woning Notenhof 33 Schagen

Notenhof 33, 1741VP Schagen

Ontvang updates voor Groeneweg

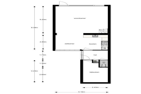
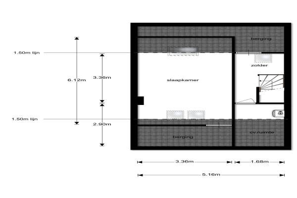
Het adres van deze woning uit 1974 is Notenhof 33 te Schagen. Het pand heeft een oppervlakte van 120m² en een perceeloppervlakte van 187m² en heeft 5 kamers kamers waarvan 4 slaapkamers. De geschatte waarde van deze woning is € 259.000.

Bekijk alle woningen in Groeneweg

Gegevens van Eengezinswoning, hoekwoning

Bouwjaar
1974
Geschatte waarde
€ 259.000
Oppervlakte
120 m2
Inhoud
360 m3
Aantal kamers
5 kamers
Slaapkamers
4
Badkamers
1 apart toilet
Soort bouw
Bestaande bouw
Eigendomssituatie
Volle eigendom
Ligging
Aan rustige weg, in woonwijk en beschutte ligging
Tuin
Achtertuin, voortuin en zijtuin
Achtertuin
66 m² (11m diep en 6m breed)

Voorzieningen in de buurt

Binnenkijken bij Notenhof 33 te Schagen

Meer meldingen in deze omgeving

112 melding
Vrijdag 26-12-2025 om 01:12
Lindenlaan, 1741TS Schagen

112 melding
Woensdag 24-12-2025 om 13:53
A. Mauvestraat, 1741JL Schagen

112 melding
Dinsdag 23-12-2025 om 11:20
Populierenlaan, 1741WT Schagen

112 melding
Dinsdag 23-12-2025 om 10:49
Lindenlaan, 1741TS Schagen

112 melding
Dinsdag 23-12-2025 om 10:42
Lijsterbesstraat, 1741SM Schagen

112 melding
Dinsdag 23-12-2025 om 10:28
Seringenhof, 1741WB Schagen

112 melding
Dinsdag 23-12-2025 om 08:44
A. Mauvestraat, 1741JK Schagen

112 melding
Dinsdag 23-12-2025 om 08:44
A. Mauvestraat, 1741JK Schagen

Direct een e-mail ontvangen bij nieuwe meldingen in deze regio?

Meld je dan GRATIS aan voor de Oozo Alert service voor Groeneweg

Instellen

Meer nieuws in Groeneweg

Weten hoe eenvoudig het is om af te vallen? Zonder pillen en smeersels en zonder je in het zweet te werken!
Kijk op eenvoudig-afvallen.nl

© 2012 - 2025 OOZO.nl - info@oozo.nl - Gegevens verwijderen? | Disclaimer | Privacy statement