Woning Nieuwe Haven 53L Schiedam

Nieuwe Haven 53L, 3116AA Schiedam

Ontvang updates voor Nassaubuurt

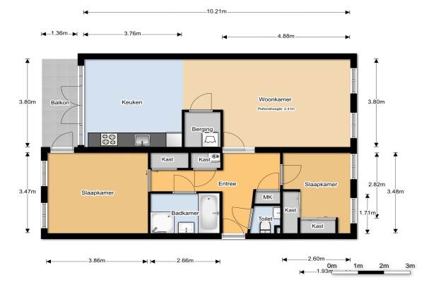
Het adres van deze woning uit 2000 is Nieuwe Haven 53L te Schiedam. Het pand heeft een oppervlakte van 82m² en heeft 3 kamers kamers waarvan 2 slaapkamers. De geschatte waarde van deze woning is € 220.000.

Bekijk alle woningen in Nassaubuurt

Gegevens van Portiekflat (appartement)

Bouwjaar
2000
Geschatte waarde
€ 220.000
Oppervlakte
82 m2
Inhoud
240 m3
Aantal kamers
3 kamers
Slaapkamers
2
Badkamers
1 badkamer en 1 apart toilet
Soort bouw
Bestaande bouw
Eigendomssituatie
Volle eigendom
Ligging
Aan water, aan rustige weg, in centrum, in woonwijk en vrij uitzicht

Voorzieningen in de buurt

Boodschappen0,4 km
Grote supermarkt0,5 km
Cafetaria0,5 km
Restaurant0,3 km
Huisarts0,3 km
Ziekenhuis2,5 km
Kinderdagverblijf0,2 km
BSO0,2 km
Alle voorzieningen in Nassaubuurt

Binnenkijken bij Nieuwe Haven 53L te Schiedam

Meer meldingen in deze omgeving

Nieuw bedrijf
December 2025
Willem de Zwijgerlaan 35K254, 3116HW Schiedam

112 melding
Vrijdag 5-12-2025 om 14:13
Prins Mauritsstraat, 3116GE Schiedam

112 melding
Vrijdag 5-12-2025 om 12:18
Westerkade, 3116GK Schiedam

Binnenkijken bij
Vrijdag 5-12-2025
Prins Mauritsstraat 23, 3116GE Schiedam

112 melding
Donderdag 4-12-2025 om 10:06
Westerkade, 3116GK Schiedam

Binnenkijken bij
Dinsdag 2-12-2025
Nieuwe Haven 61A, 3116AA Schiedam

Binnenkijken bij
Dinsdag 2-12-2025
Westerkade 2, 3116GJ Schiedam

Nieuw bedrijf
December 2025
Stadhouderslaan 51, 3116HK Schiedam

Direct een e-mail ontvangen bij nieuwe meldingen in deze regio?

Meld je dan GRATIS aan voor de Oozo Alert service voor Nassaubuurt

Instellen

Meer nieuws in Nassaubuurt

Weten hoe eenvoudig het is om af te vallen? Zonder pillen en smeersels en zonder je in het zweet te werken!
Kijk op eenvoudig-afvallen.nl

© 2012 - 2025 OOZO.nl - info@oozo.nl - Gegevens verwijderen? | Disclaimer | Privacy statement