Woning Dilleveld 62 Schiedam

Dilleveld 62, 3124VC Schiedam

Ontvang updates voor De Akkers en De Velden

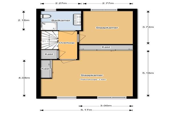
Het adres van deze woning uit 1993 is Dilleveld 62 te Schiedam. Het pand heeft een oppervlakte van 135m² en een perceeloppervlakte van 128m² en heeft 5 kamers kamers waarvan 4 slaapkamers. De geschatte waarde van deze woning is € 310.000.

Bekijk alle woningen in De Akkers en De Velden

Gegevens van Eengezinswoning, tussenwoning

Bouwjaar
1993
Geschatte waarde
€ 310.000
Oppervlakte
135 m2
Inhoud
451 m3
Aantal kamers
5 kamers
Slaapkamers
4
Badkamers
1 badkamer en 1 apart toilet
Soort bouw
Bestaande bouw
Eigendomssituatie
Gemeentelijke erfpacht (einddatum erfpacht: 30-11-2091)
Ligging
In woonwijk
Tuin
Achtertuin
Achtertuin
50 m² (9,71m diep en 5,17m breed)

Voorzieningen in de buurt

Boodschappen0,5 km
Grote supermarkt0,5 km
Cafetaria0,6 km
Restaurant0,6 km
Huisarts1,5 km
Ziekenhuis3,4 km
Kinderdagverblijf0,8 km
BSO0,8 km
Alle voorzieningen in De Akkers en De Velden

Binnenkijken bij Dilleveld 62 te Schiedam

Meer meldingen in deze omgeving

112 melding
Maandag 26-1-2026 om 13:31
Veldpad, 3124VL Schiedam

Nieuw bedrijf
Januari 2026
De Akkers 12, 3124AD Schiedam

112 melding
Donderdag 22-1-2026 om 11:20
Lavendelveld, 3124CH Schiedam

112 melding
Maandag 19-1-2026 om 00:08
Linzenakker, 3124XE Schiedam

112 melding
Vrijdag 16-1-2026 om 21:25
Roggeakker, 3124XH Schiedam

112 melding
Donderdag 15-1-2026 om 15:18
Basilicumveld, 3124CA Schiedam

Binnenkijken bij
Donderdag 15-1-2026
Vlasakker 19, 3124AJ Schiedam

112 melding
Dinsdag 13-1-2026 om 17:49
Speltakker, 3124XK Schiedam

Direct een e-mail ontvangen bij nieuwe meldingen in deze regio?

Meld je dan GRATIS aan voor de Oozo Alert service voor De Akkers en De Velden

Instellen

Meer nieuws in De Akkers en De Velden

Weten hoe eenvoudig het is om af te vallen? Zonder pillen en smeersels en zonder je in het zweet te werken!
Kijk op eenvoudig-afvallen.nl

© 2012 - 2026 OOZO.nl - info@oozo.nl - Gegevens verwijderen? | Disclaimer | Privacy statement