Woning Merwedestraat 38 Schiedam

Merwedestraat 38, 3114SW Schiedam

Ontvang updates voor Maasboulevard

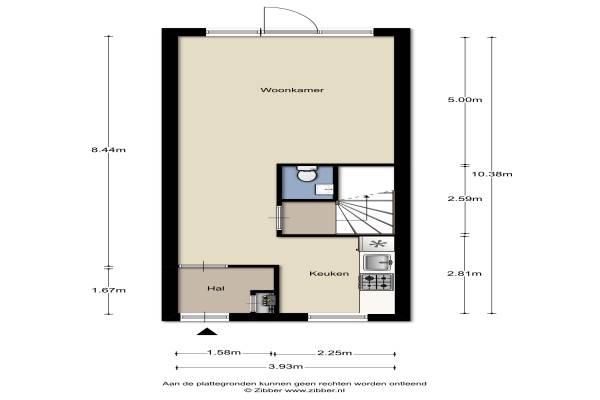
Het adres van deze woning uit 1994 is Merwedestraat 38 te Schiedam. Het pand heeft een oppervlakte van 84m² en een perceeloppervlakte van 84m² en heeft 3 kamers kamers waarvan 2 slaapkamers. De geschatte waarde van deze woning is € 169.500.

Bekijk alle woningen in Maasboulevard

Gegevens van Eengezinswoning, tussenwoning

Bouwjaar
1994
Geschatte waarde
€ 169.500
Oppervlakte
84 m2
Inhoud
210 m3
Aantal kamers
3 kamers
Slaapkamers
2
Badkamers
1 badkamer
Soort bouw
Bestaande bouw
Eigendomssituatie
Erfpacht
Ligging
Aan bosrand, aan rustige weg, aan water, in bosrijke omgeving en open ligging
Tuin
Achtertuin

Voorzieningen in de buurt

Boodschappen0,6 km
Grote supermarkt0,8 km
Cafetaria0,3 km
Restaurant0,4 km
Huisarts1,0 km
Ziekenhuis3,5 km
Kinderdagverblijf0,6 km
BSO0,5 km
Alle voorzieningen in Maasboulevard

Binnenkijken bij Merwedestraat 38 te Schiedam

Meer meldingen in deze omgeving

112 melding
Vrijdag 9-1-2026 om 15:32
Havendijk, 3114EJ Schiedam

112 melding
Donderdag 8-1-2026 om 03:01
Maasboulevard, 3114HD Schiedam

112 melding
Zaterdag 3-1-2026 om 10:17
Rijnstraat, 3114SP Schiedam

112 melding
Zaterdag 3-1-2026 om 09:46
Rijnstraat, 3114SP Schiedam

112 melding
Donderdag 1-1-2026 om 11:28
Havendijk, 3114EL Schiedam

112 melding
Woensdag 31-12-2025 om 18:05
Havendijk, 3114EL Schiedam

112 melding
Woensdag 31-12-2025 om 11:17
Maasboulevard, 3114HD Schiedam

112 melding
Dinsdag 30-12-2025 om 21:28
Maasboulevard, 3114HD Schiedam

Direct een e-mail ontvangen bij nieuwe meldingen in deze regio?

Meld je dan GRATIS aan voor de Oozo Alert service voor Maasboulevard

Instellen

Meer nieuws in Maasboulevard

Weten hoe eenvoudig het is om af te vallen? Zonder pillen en smeersels en zonder je in het zweet te werken!
Kijk op eenvoudig-afvallen.nl

© 2012 - 2026 OOZO.nl - info@oozo.nl - Gegevens verwijderen? | Disclaimer | Privacy statement