Woning Steenstraat 11 Schiedam

Steenstraat 11, 3114NR Schiedam

Ontvang updates voor Noletbuurt

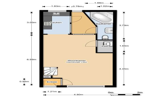
Het adres van deze woning uit 1876 is Steenstraat 11 te Schiedam. Het pand heeft een oppervlakte van 74m² en een perceeloppervlakte van 51m² en heeft 2 kamers kamers waarvan 1 slaapkamers. De geschatte waarde van deze woning is € 92.500.

Bekijk alle woningen in Noletbuurt

Gegevens van Eengezinswoning, tussenwoning

Bouwjaar
1876
Geschatte waarde
€ 92.500
Oppervlakte
74 m2
Inhoud
245 m3
Aantal kamers
2 kamers
Slaapkamers
1
Badkamers
1 badkamer
Soort bouw
Bestaande bouw
Eigendomssituatie
Volle eigendom

Voorzieningen in de buurt

Boodschappen0,2 km
Grote supermarkt0,3 km
Cafetaria0,1 km
Restaurant0,3 km
Huisarts0,5 km
Ziekenhuis2,9 km
Kinderdagverblijf0,2 km
BSO0,2 km
Alle voorzieningen in Noletbuurt

Binnenkijken bij Steenstraat 11 te Schiedam

Meer meldingen in deze omgeving

Faillissement
Dinsdag 25-11-2025
Hoofdstraat 127A, 3114GC Schiedam

Binnenkijken bij
Dinsdag 25-11-2025
Ploegstraat 30, 3114NP Schiedam

112 melding
Maandag 24-11-2025 om 20:27
Grevelingenstraat, 3114WB Schiedam

112 melding
Maandag 24-11-2025 om 12:44
Hagastraat, 3114NE Schiedam

112 melding
Vrijdag 21-11-2025 om 12:22
Maasstraat, 3114NM Schiedam

Nieuw bedrijf
November 2025
Willem Brouwerstraat 39, 3114NV Schiedam

Nieuw bedrijf
November 2025
Maasstraat 23, 3114NL Schiedam

112 melding
Woensdag 19-11-2025 om 15:54
Spuistraat, 3114CR Schiedam

Direct een e-mail ontvangen bij nieuwe meldingen in deze regio?

Meld je dan GRATIS aan voor de Oozo Alert service voor Noletbuurt

Instellen

Meer nieuws in Noletbuurt

Weten hoe eenvoudig het is om af te vallen? Zonder pillen en smeersels en zonder je in het zweet te werken!
Kijk op eenvoudig-afvallen.nl

© 2012 - 2025 OOZO.nl - info@oozo.nl - Gegevens verwijderen? | Disclaimer | Privacy statement