Woning 't Hoogt 34 Strijen

't Hoogt 34, 3291GB Strijen

Ontvang updates voor Land van Essche

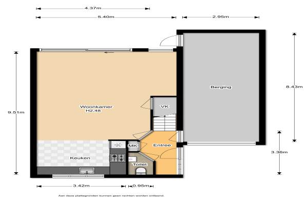
Het adres van deze woning uit 1994 is 't Hoogt 34 te Strijen. Het pand heeft een oppervlakte van 116m² en een perceeloppervlakte van 210m² en heeft 5 kamers kamers waarvan 3 slaapkamers. De geschatte waarde van deze woning is € 300.000.

Bekijk alle woningen in Land van Essche

Gegevens van Eengezinswoning, 2-onder-1-kapwoning

Bouwjaar
1994
Geschatte waarde
€ 300.000
Oppervlakte
116 m2
Inhoud
485 m3
Aantal kamers
5 kamers
Slaapkamers
3
Badkamers
1 badkamer en 1 apart toilet
Soort bouw
Bestaande bouw
Eigendomssituatie
Volle eigendom
Ligging
Aan rustige weg en in woonwijk
Tuin
Achtertuin en voortuin
Achtertuin
89 m² (7,4m diep en 12m breed)

Voorzieningen in de buurt

Binnenkijken bij 't Hoogt 34 te Strijen

Meer meldingen in deze omgeving

112 melding
Donderdag 20-11-2025 om 16:29
Strienemonde, 3291HL Strijen

112 melding
Dinsdag 18-11-2025 om 14:13
Strienemonde, 3291HL Strijen

112 melding
Dinsdag 18-11-2025 om 08:27
Hilsondusstraat, 3291HD Strijen

112 melding
Dinsdag 18-11-2025 om 08:27
Hilsondusstraat, 3291HD Strijen

112 melding
Dinsdag 18-11-2025 om 08:26
Lambertusstraat, 3291GR Strijen

112 melding
Dinsdag 18-11-2025 om 08:25
Hilsondusstraat, 3291HD Strijen

112 melding
Dinsdag 18-11-2025 om 08:25
Hilsondusstraat, 3291HD Strijen

112 melding
Dinsdag 18-11-2025 om 08:24
Lambertusstraat, 3291GR Strijen

Direct een e-mail ontvangen bij nieuwe meldingen in deze regio?

Meld je dan GRATIS aan voor de Oozo Alert service voor Land van Essche

Instellen

Meer nieuws in Land van Essche

Weten hoe eenvoudig het is om af te vallen? Zonder pillen en smeersels en zonder je in het zweet te werken!
Kijk op eenvoudig-afvallen.nl

© 2012 - 2025 OOZO.nl - info@oozo.nl - Gegevens verwijderen? | Disclaimer | Privacy statement