Woning Cederstraat 131 Tilburg

Cederstraat 131, 5037JD Tilburg

Ontvang updates voor Notre Dame

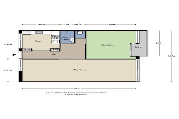
Het adres van deze woning uit 1965 is Cederstraat 131 te Tilburg. Het pand heeft een oppervlakte van 75m² en heeft 2 kamers kamers waarvan 1 slaapkamers. De geschatte waarde van deze woning is € 162.500.

Bekijk alle woningen in Notre Dame

Gegevens van Galerijflat (appartement)

Bouwjaar
1965
Geschatte waarde
€ 162.500
Oppervlakte
75 m2
Inhoud
230 m3
Aantal kamers
2 kamers
Slaapkamers
1
Badkamers
1 apart toilet
Soort bouw
Bestaande bouw
Eigendomssituatie
Volle eigendom
Ligging
In centrum

Voorzieningen in de buurt

Boodschappen0,5 km
Grote supermarkt1,0 km
Cafetaria0,7 km
Restaurant0,4 km
Huisarts0,3 km
Ziekenhuis2,5 km
Kinderdagverblijf0,3 km
BSO0,4 km
Alle voorzieningen in Notre Dame

Binnenkijken bij Cederstraat 131 te Tilburg

Meer meldingen in deze omgeving

112 melding
Donderdag 16-10-2025 om 18:48
Mahoniestraat, 5037JL Tilburg

112 melding
Donderdag 16-10-2025 om 15:27
Ringbaan-West, 5037PB Tilburg

112 melding
Donderdag 16-10-2025 om 14:47
Mangrovestraat, 5037JH Tilburg

112 melding
Woensdag 15-10-2025 om 09:27
Ringbaan-West, 5037PB Tilburg

112 melding
Woensdag 15-10-2025 om 08:55
Professor Cobbenhagenlaan, 5037DC Tilburg

112 melding
Woensdag 15-10-2025 om 08:40
Professor Cobbenhagenlaan, 5037DC Tilburg

112 melding
Dinsdag 14-10-2025 om 15:57
Professor Cobbenhagenlaan, 5037DC Tilburg

112 melding
Dinsdag 14-10-2025 om 13:04
Coromandelstraat, 5037JP Tilburg

Direct een e-mail ontvangen bij nieuwe meldingen in deze regio?

Meld je dan GRATIS aan voor de Oozo Alert service voor Notre Dame

Instellen

Meer nieuws in Notre Dame

Weten hoe eenvoudig het is om af te vallen? Zonder pillen en smeersels en zonder je in het zweet te werken!
Kijk op eenvoudig-afvallen.nl

© 2012 - 2025 OOZO.nl - info@oozo.nl - Gegevens verwijderen? | Disclaimer | Privacy statement