Woning Professor Gimbr&#2 3 Tilburg

Professor Gimbr 3, 5037EE Tilburg

Ontvang updates voor Notre Dame

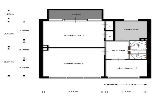
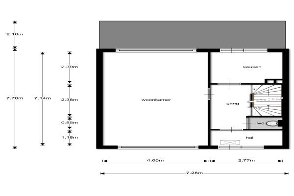
Het adres van deze woning uit 1964 is Professor Gimbr 3 te Tilburg. Het pand heeft een oppervlakte van 120m² en een perceeloppervlakte van 242m² en heeft 5 kamers kamers waarvan 4 slaapkamers. De geschatte waarde van deze woning is € 259.500.

Bekijk alle woningen in Notre Dame

Gegevens van Eengezinswoning, hoekwoning

Bouwjaar
1964
Geschatte waarde
€ 259.500
Oppervlakte
120 m2
Inhoud
392 m3
Aantal kamers
5 kamers
Slaapkamers
4
Badkamers
1 badkamer en 1 apart toilet
Soort bouw
Bestaande bouw
Eigendomssituatie
Volle eigendom
Ligging
Aan park, in woonwijk en open ligging
Tuin
Achtertuin en voortuin
Achtertuin
68 m² (9m diep en 7,5m breed)

Voorzieningen in de buurt

Boodschappen0,5 km
Grote supermarkt1,0 km
Cafetaria0,7 km
Restaurant0,4 km
Huisarts0,3 km
Ziekenhuis2,5 km
Kinderdagverblijf0,3 km
BSO0,4 km
Alle voorzieningen in Notre Dame

Binnenkijken bij Professor Gimbr 3 te Tilburg

Meer meldingen in deze omgeving

112 melding
Woensdag 12-11-2025 om 15:32
Cederstraat, 5037JD Tilburg

112 melding
Woensdag 12-11-2025 om 10:33
Professor Cobbenhagenlaan, 5037DC Tilburg

Binnenkijken bij
Dinsdag 11-11-2025
Professor Cobbenhagenlaan 36, 5037DC Tilburg

Binnenkijken bij
Dinsdag 11-11-2025
Bredaseweg 323B, 5037LB Tilburg

112 melding
Dinsdag 11-11-2025 om 09:56
Merantistraat, 5037JR Tilburg

112 melding
Dinsdag 11-11-2025 om 07:14
Coromandelstraat, 5037JP Tilburg

112 melding
Maandag 10-11-2025 om 16:32
Coromandelstraat, 5037JP Tilburg

112 melding
Maandag 10-11-2025 om 16:32
Coromandelstraat, 5037JP Tilburg

Direct een e-mail ontvangen bij nieuwe meldingen in deze regio?

Meld je dan GRATIS aan voor de Oozo Alert service voor Notre Dame

Instellen

Meer nieuws in Notre Dame

Weten hoe eenvoudig het is om af te vallen? Zonder pillen en smeersels en zonder je in het zweet te werken!
Kijk op eenvoudig-afvallen.nl

© 2012 - 2025 OOZO.nl - info@oozo.nl - Gegevens verwijderen? | Disclaimer | Privacy statement