Woning Groeseindstraat 42 Tilburg

Groeseindstraat 42, 5014LW Tilburg

Ontvang updates voor Padua

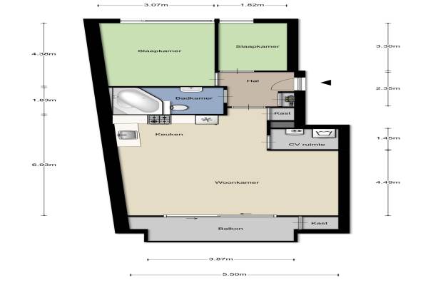
Het adres van deze woning uit 2001 is Groeseindstraat 42 te Tilburg. Het pand heeft een oppervlakte van 71m² en heeft 3 kamers kamers waarvan 2 slaapkamers. De geschatte waarde van deze woning is € 192.500.

Bekijk alle woningen in Padua

Gegevens van Portiekflat (appartement)

Bouwjaar
2001
Geschatte waarde
€ 192.500
Oppervlakte
71 m2
Inhoud
231 m3
Aantal kamers
3 kamers
Slaapkamers
2
Badkamers
1 badkamer
Soort bouw
Bestaande bouw
Eigendomssituatie
Volle eigendom
Ligging
In woonwijk

Voorzieningen in de buurt

Boodschappen0,3 km
Grote supermarkt0,3 km
Cafetaria0,2 km
Restaurant0,3 km
Huisarts0,2 km
Ziekenhuis2,7 km
Kinderdagverblijf0,3 km
BSO0,7 km
Alle voorzieningen in Padua

Binnenkijken bij Groeseindstraat 42 te Tilburg

Meer meldingen in deze omgeving

112 melding
Donderdag 23-4-2026 om 08:12
Veldhovenring, 5041BA Tilburg

112 melding
Woensdag 22-4-2026 om 11:52
Hoefstraat, 5014NL Tilburg

112 melding
Woensdag 22-4-2026 om 11:52
Hoefstraat, 5014NL Tilburg

112 melding
Dinsdag 21-4-2026 om 16:15
Kardinaal van Enckevoirtstraat, Tilburg

112 melding
Zaterdag 18-4-2026 om 09:00
Groeseindstraat, 5046XB Tilburg

112 melding
Zaterdag 18-4-2026 om 09:00
Groeseindstraat, 5046XB Tilburg

112 melding
Vrijdag 17-4-2026 om 12:46
Kardinaal van Enckevoirtstraat, Tilburg

112 melding
Vrijdag 17-4-2026 om 12:46
Kardinaal van Enckevoirtstraat, Tilburg

Direct een e-mail ontvangen bij nieuwe meldingen in deze regio?

Meld je dan GRATIS aan voor de Oozo Alert service voor Padua

Instellen

Meer nieuws in Padua

Weten hoe eenvoudig het is om af te vallen? Zonder pillen en smeersels en zonder je in het zweet te werken!
Kijk op eenvoudig-afvallen.nl

© 2012 - 2026 OOZO.nl - info@oozo.nl - Gegevens verwijderen? | Disclaimer | Privacy statement