Woning Leo XIII-straat 11 Tilburg

Leo XIII-straat 11, 5046KG Tilburg

Ontvang updates voor Pastorieklamp West

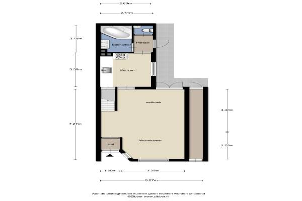
Het adres van deze woning uit 1934 is Leo XIII-straat 11 te Tilburg. Het pand heeft een oppervlakte van 105m² en een perceeloppervlakte van 153m² en heeft 5 kamers kamers waarvan 4 slaapkamers. De geschatte waarde van deze woning is € 199.500.

Bekijk alle woningen in Pastorieklamp West

Gegevens van Eengezinswoning, eindwoning

Bouwjaar
1934
Geschatte waarde
€ 199.500
Oppervlakte
105 m2
Inhoud
349 m3
Aantal kamers
5 kamers
Slaapkamers
4
Badkamers
1 apart toilet
Soort bouw
Bestaande bouw
Eigendomssituatie
Volle eigendom
Ligging
Aan rustige weg en in woonwijk
Tuin
Achtertuin
Achtertuin
103 m² (21,55m diep en 3,4m breed)

Voorzieningen in de buurt

Boodschappen0,3 km
Grote supermarkt0,5 km
Cafetaria0,3 km
Restaurant0,3 km
Huisarts0,8 km
Ziekenhuis1,9 km
Kinderdagverblijf0,4 km
BSO0,7 km
Alle voorzieningen in Pastorieklamp West

Binnenkijken bij Leo XIII-straat 11 te Tilburg

Meer meldingen in deze omgeving

Binnenkijken bij
Zondag 25-1-2026
Leo XIII-straat 71, 5046KH Tilburg

112 melding
Vrijdag 23-1-2026 om 21:37
Korte Hoefstraat, 5046DA Tilburg

112 melding
Vrijdag 23-1-2026 om 19:23
Korte Hoefstraat, 5046DB Tilburg

112 melding
Vrijdag 23-1-2026 om 14:43
Goirkestraat, 5046GK Tilburg

112 melding
Vrijdag 23-1-2026 om 14:43
Goirkestraat, 5046GK Tilburg

112 melding
Vrijdag 23-1-2026 om 10:32
Kardinaal Vaughanstraat, 5046DP Tilburg

112 melding
Donderdag 22-1-2026 om 09:22
Kardinaal Vaughanstraat, 5046DP Tilburg

112 melding
Donderdag 22-1-2026 om 09:15
Bisschop Bekkerslaan, 5046JW Tilburg

Direct een e-mail ontvangen bij nieuwe meldingen in deze regio?

Meld je dan GRATIS aan voor de Oozo Alert service voor Pastorieklamp West

Instellen

Meer nieuws in Pastorieklamp West

Weten hoe eenvoudig het is om af te vallen? Zonder pillen en smeersels en zonder je in het zweet te werken!
Kijk op eenvoudig-afvallen.nl

© 2012 - 2026 OOZO.nl - info@oozo.nl - Gegevens verwijderen? | Disclaimer | Privacy statement