Woning Smidspad 95 Tilburg

Smidspad 95, 5046JB Tilburg

Ontvang updates voor Pastorieklamp West

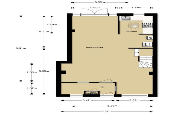
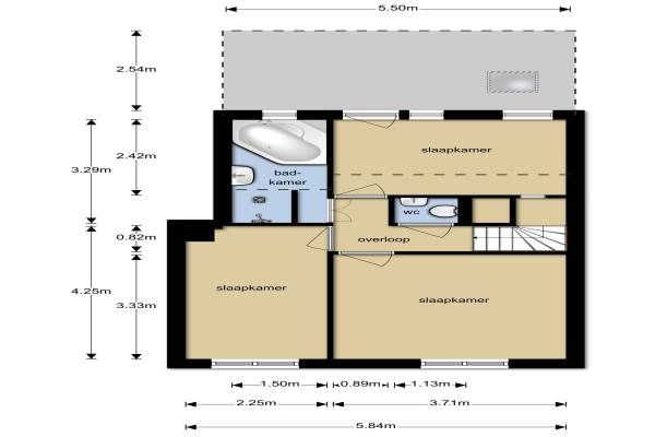
Het adres van deze woning is Smidspad 95 te Tilburg. Het pand heeft een oppervlakte van 97m² en een perceeloppervlakte van 96m² en heeft 4 kamers kamers waarvan 3 slaapkamers. De geschatte waarde van deze woning is € 179.000.

Bekijk alle woningen in Pastorieklamp West

Gegevens van Eengezinswoning, tussenwoning

Bouwjaar
Voor 1906
Geschatte waarde
€ 179.000
Oppervlakte
97 m2
Inhoud
334 m3
Aantal kamers
4 kamers
Slaapkamers
3
Badkamers
1 badkamer en 1 apart toilet
Soort bouw
Bestaande bouw
Eigendomssituatie
Volle eigendom
Ligging
Aan rustige weg en in woonwijk
Tuin
Achtertuin
Achtertuin
44 m² (8m diep en 5,5m breed)

Voorzieningen in de buurt

Boodschappen0,3 km
Grote supermarkt0,5 km
Cafetaria0,3 km
Restaurant0,3 km
Huisarts0,8 km
Ziekenhuis1,9 km
Kinderdagverblijf0,4 km
BSO0,7 km
Alle voorzieningen in Pastorieklamp West

Binnenkijken bij Smidspad 95 te Tilburg

Meer meldingen in deze omgeving

112 melding
Woensdag 25-2-2026 om 15:31
Sint Marcusstraat, 5046DT Tilburg

112 melding
Woensdag 25-2-2026 om 12:58
Bisschop Bekkerslaan, Tilburg

112 melding
Woensdag 25-2-2026 om 12:57
Goirkestraat, 5046GK Tilburg

112 melding
Woensdag 25-2-2026 om 11:57
Bisschop Bekkerslaan, 5046JE Tilburg

112 melding
Woensdag 25-2-2026 om 11:38
Goirkestraat, 5046GR Tilburg

112 melding
Woensdag 25-2-2026 om 10:46
Bisschop Bekkerslaan, 5046JE Tilburg

112 melding
Dinsdag 24-2-2026 om 16:42
Norbertijnerpoort, 5046GL Tilburg

112 melding
Dinsdag 24-2-2026 om 14:02
Korte Hoefstraat, 5046DA Tilburg

Direct een e-mail ontvangen bij nieuwe meldingen in deze regio?

Meld je dan GRATIS aan voor de Oozo Alert service voor Pastorieklamp West

Instellen

Meer nieuws in Pastorieklamp West

Weten hoe eenvoudig het is om af te vallen? Zonder pillen en smeersels en zonder je in het zweet te werken!
Kijk op eenvoudig-afvallen.nl

© 2012 - 2026 OOZO.nl - info@oozo.nl - Gegevens verwijderen? | Disclaimer | Privacy statement