Woning Dwingeloostraat 61 Tilburg

Dwingeloostraat 61, 5043HC Tilburg

Ontvang updates voor Huibeven Oost

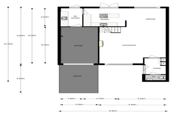
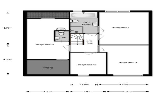
Het adres van deze woning uit 1986 is Dwingeloostraat 61 te Tilburg. Het pand heeft een oppervlakte van 132m² en een perceeloppervlakte van 249m² en heeft 5 kamers kamers waarvan 4 slaapkamers. De geschatte waarde van deze woning is € 279.500.

Bekijk alle woningen in Huibeven Oost

Gegevens van Eengezinswoning, geschakelde 2-onder-1-kapwoning

Bouwjaar
1986
Geschatte waarde
€ 279.500
Oppervlakte
132 m2
Inhoud
461 m3
Aantal kamers
5 kamers
Slaapkamers
4
Badkamers
1 badkamer en 2 aparte toiletten
Soort bouw
Bestaande bouw
Eigendomssituatie
Volle eigendom
Ligging
Aan bosrand, aan rustige weg, in woonwijk, beschutte ligging en in bosrijke omgeving
Tuin
Achtertuin en voortuin
Achtertuin
108 m² (12m diep en 9m breed)

Voorzieningen in de buurt

Boodschappen0,7 km
Grote supermarkt0,7 km
Cafetaria0,5 km
Restaurant0,7 km
Huisarts0,5 km
Ziekenhuis4,1 km
Kinderdagverblijf0,7 km
BSO0,7 km
Alle voorzieningen in Huibeven Oost

Binnenkijken bij Dwingeloostraat 61 te Tilburg

Meer meldingen in deze omgeving

Binnenkijken bij
Donderdag 9-10-2025
Dreischorstraat 48, 5043JB Tilburg

112 melding
Donderdag 9-10-2025 om 08:07
Deilstraat, 5043HA Tilburg

Nieuw bedrijf
Oktober 2025
Driebergenstraat 12, 5043HZ Tilburg

Nieuw bedrijf
Oktober 2025
Drontenhof 8, 5043HL Tilburg

Nieuw bedrijf
Oktober 2025
Drontenhof 8, 5043HL Tilburg

112 melding
Woensdag 8-10-2025 om 15:41
Burgemeester Baron van Voorst tot Voorstweg, 5048 Tilburg

112 melding
Woensdag 8-10-2025 om 15:01
Drongelenhof, 5043HM Tilburg

112 melding
Woensdag 8-10-2025 om 12:00
Dwingeloostraat, 5043HC Tilburg

Direct een e-mail ontvangen bij nieuwe meldingen in deze regio?

Meld je dan GRATIS aan voor de Oozo Alert service voor Huibeven Oost

Instellen

Meer nieuws in Huibeven Oost

Weten hoe eenvoudig het is om af te vallen? Zonder pillen en smeersels en zonder je in het zweet te werken!
Kijk op eenvoudig-afvallen.nl

© 2012 - 2025 OOZO.nl - info@oozo.nl - Gegevens verwijderen? | Disclaimer | Privacy statement