Woning Drielstraat 24 Tilburg

Drielstraat 24, 5043HX Tilburg

Ontvang updates voor Huibeven Oost

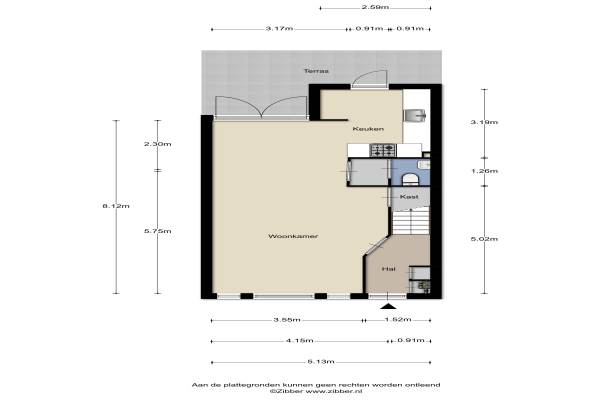
Het adres van deze woning uit 1988 is Drielstraat 24 te Tilburg. Het pand heeft een oppervlakte van 119m² en een perceeloppervlakte van 116m² en heeft 5 kamers kamers waarvan 4 slaapkamers. De geschatte waarde van deze woning is € 215.000.

Bekijk alle woningen in Huibeven Oost

Gegevens van Eengezinswoning, tussenwoning

Bouwjaar
1988
Geschatte waarde
€ 215.000
Oppervlakte
119 m2
Inhoud
315 m3
Aantal kamers
5 kamers
Slaapkamers
4
Soort bouw
Bestaande bouw
Eigendomssituatie
Volle eigendom
Ligging
In woonwijk
Tuin
Achtertuin en voortuin
Achtertuin
43 m² (8,5m diep en 5,1m breed)

Voorzieningen in de buurt

Boodschappen0,7 km
Grote supermarkt0,7 km
Cafetaria0,5 km
Restaurant0,7 km
Huisarts0,5 km
Ziekenhuis4,1 km
Kinderdagverblijf0,7 km
BSO0,7 km
Alle voorzieningen in Huibeven Oost

Binnenkijken bij Drielstraat 24 te Tilburg

Meer meldingen in deze omgeving

112 melding
Vrijdag 19-12-2025 om 12:02
Delfgauwstraat, 5043JM Tilburg

112 melding
Donderdag 18-12-2025 om 11:57
Drimmelenstraat, 5043JZ Tilburg

112 melding
Dinsdag 16-12-2025 om 11:02
Diepenveenstraat, 5043JL Tilburg

112 melding
Dinsdag 16-12-2025 om 11:01
Domburgsingel, 5043JD Tilburg

112 melding
Maandag 15-12-2025 om 16:42
Burgemeester Baron van Voorst tot Voorstweg, 5043EZ Tilburg

112 melding
Maandag 15-12-2025 om 16:38
Domburgsingel, 5043JD Tilburg

112 melding
Maandag 15-12-2025 om 13:30
Delfshavenstraat, 5043JV Tilburg

112 melding
Maandag 15-12-2025 om 13:01
Dorthstraat, 5043HN Tilburg

Direct een e-mail ontvangen bij nieuwe meldingen in deze regio?

Meld je dan GRATIS aan voor de Oozo Alert service voor Huibeven Oost

Instellen

Meer nieuws in Huibeven Oost

Weten hoe eenvoudig het is om af te vallen? Zonder pillen en smeersels en zonder je in het zweet te werken!
Kijk op eenvoudig-afvallen.nl

© 2012 - 2025 OOZO.nl - info@oozo.nl - Gegevens verwijderen? | Disclaimer | Privacy statement