Woning Zwartvenseweg 15 Tilburg

Zwartvenseweg 15, 5044PA Tilburg

Ontvang updates voor Auteursbuurt

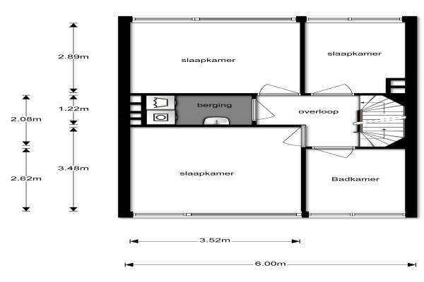
Het adres van deze woning uit 1965 is Zwartvenseweg 15 te Tilburg. Het pand heeft een oppervlakte van 121m² en een perceeloppervlakte van 149m² en heeft 5 kamers kamers waarvan 4 slaapkamers. De geschatte waarde van deze woning is € 200.000.

Bekijk alle woningen in Auteursbuurt

Gegevens van Eengezinswoning, tussenwoning

Bouwjaar
1965
Geschatte waarde
€ 200.000
Oppervlakte
121 m2
Inhoud
380 m3
Aantal kamers
5 kamers
Slaapkamers
4
Badkamers
1 badkamer en 1 apart toilet
Soort bouw
Bestaande bouw
Eigendomssituatie
Volle eigendom
Ligging
Aan bosrand en in woonwijk
Tuin
Achtertuin en voortuin
Achtertuin
30 m² (5m diep en 6m breed)

Voorzieningen in de buurt

Boodschappen0,7 km
Grote supermarkt0,7 km
Cafetaria0,7 km
Restaurant0,4 km
Huisarts0,4 km
Ziekenhuis2,8 km
Kinderdagverblijf0,3 km
BSO0,3 km
Alle voorzieningen in Auteursbuurt

Binnenkijken bij Zwartvenseweg 15 te Tilburg

Meer meldingen in deze omgeving

112 melding
Donderdag 9-10-2025 om 12:28
Reeshofdijk, 5044VB Tilburg

112 melding
Woensdag 8-10-2025 om 08:21
Herman Heyermansweg, 5044NB Tilburg

112 melding
Woensdag 8-10-2025 om 08:21
Herman Heyermansweg, 5044 Tilburg

Nieuw bedrijf
Oktober 2025
Hugo Verrieststraat 30, 5044PL Tilburg

112 melding
Dinsdag 7-10-2025 om 16:25
Reeshofdijk, 5044VB Tilburg

112 melding
Dinsdag 7-10-2025 om 13:51
Herman Heyermansweg, 5044NB Tilburg

112 melding
Dinsdag 7-10-2025 om 13:25
Auteurslaan, 5044MA Tilburg

112 melding
Dinsdag 7-10-2025 om 12:54
Herman Heyermansweg, 5044 Tilburg

Direct een e-mail ontvangen bij nieuwe meldingen in deze regio?

Meld je dan GRATIS aan voor de Oozo Alert service voor Auteursbuurt

Instellen

Meer nieuws in Auteursbuurt

Weten hoe eenvoudig het is om af te vallen? Zonder pillen en smeersels en zonder je in het zweet te werken!
Kijk op eenvoudig-afvallen.nl

© 2012 - 2025 OOZO.nl - info@oozo.nl - Gegevens verwijderen? | Disclaimer | Privacy statement