Woning Okkernootstraat 12 Utrecht

Okkernootstraat 12, 3552VM Utrecht

Ontvang updates voor Ondiep

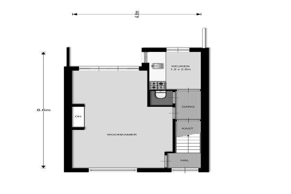
Het adres van deze woning is Okkernootstraat 12 te Utrecht. Het pand heeft een oppervlakte van 72m² en een perceeloppervlakte van 122m² en heeft 5 kamers kamers waarvan 3 slaapkamers. De geschatte waarde van deze woning is € 275.000.

Bekijk alle woningen in Ondiep

Gegevens van Eengezinswoning, tussenwoning

Geschatte waarde
€ 275.000
Oppervlakte
72 m2
Inhoud
260 m3
Aantal kamers
5 kamers
Slaapkamers
3
Badkamers
1 badkamer en 1 apart toilet
Soort bouw
Bestaande bouw
Eigendomssituatie
Gemeentelijke erfpacht
Ligging
In woonwijk
Tuin
Achtertuin en voortuin
Achtertuin
60 m² (12,5m diep en 5,1m breed)

Voorzieningen in de buurt

Boodschappen0,3 km
Grote supermarkt0,6 km
Cafetaria0,2 km
Restaurant0,3 km
Huisarts0,5 km
Ziekenhuis2,4 km
Kinderdagverblijf0,2 km
BSO0,4 km
Alle voorzieningen in Ondiep

Binnenkijken bij Okkernootstraat 12 te Utrecht

Meer meldingen in deze omgeving

Binnenkijken bij
Donderdag 22-1-2026
Nieuwlichtstraat 76, 3552GZ Utrecht

Nieuw bedrijf
Januari 2026
Amandelstraat 3, 3552CA Utrecht

Nieuw bedrijf
Januari 2026
Hogelanden W.Z. 84BS, 3552AD Utrecht

Binnenkijken bij
Woensdag 21-1-2026
Ondiep 200BS, 3552EN Utrecht

Nieuw bedrijf
Januari 2026
Ondiep 37, 3552EA Utrecht

112 melding
Zondag 18-1-2026 om 20:40
Boerhaaveplein, 3552CT Utrecht

112 melding
Zondag 18-1-2026 om 19:28
Boerhaaveplein, 3552CT Utrecht

Binnenkijken bij
Vrijdag 16-1-2026
Ananasstraat 11, 3552TE Utrecht

Direct een e-mail ontvangen bij nieuwe meldingen in deze regio?

Meld je dan GRATIS aan voor de Oozo Alert service voor Ondiep

Instellen

Meer nieuws in Ondiep

Weten hoe eenvoudig het is om af te vallen? Zonder pillen en smeersels en zonder je in het zweet te werken!
Kijk op eenvoudig-afvallen.nl

© 2012 - 2026 OOZO.nl - info@oozo.nl - Gegevens verwijderen? | Disclaimer | Privacy statement