Woning J.M. Kemperstraat 13 Utrecht

J.M. Kemperstraat 13, 3581KG Utrecht

Ontvang updates voor Oudwijk

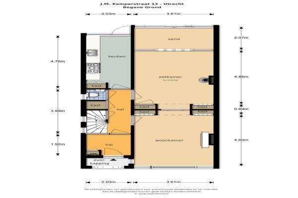
Het adres van deze woning uit 1915 is J.M. Kemperstraat 13 te Utrecht. Het pand heeft een oppervlakte van 174m² en een perceeloppervlakte van 149m² en heeft 7 kamers kamers waarvan 5 slaapkamers. De geschatte waarde van deze woning is € 850.000.

Bekijk alle woningen in Oudwijk

Gegevens van Herenhuis, hoekwoning

Bouwjaar
1915
Geschatte waarde
€ 850.000
Oppervlakte
174 m2
Inhoud
681 m3
Aantal kamers
7 kamers
Slaapkamers
5
Badkamers
1 badkamer en 2 aparte toiletten
Soort bouw
Bestaande bouw
Eigendomssituatie
Volle eigendom
Ligging
Aan rustige weg
Tuin
Achtertuin
Achtertuin
62 m² (11m diep en 5,6m breed)

Voorzieningen in de buurt

Boodschappen0,2 km
Grote supermarkt0,3 km
Cafetaria0,2 km
Restaurant0,2 km
Huisarts0,3 km
Ziekenhuis0,9 km
Kinderdagverblijf0,2 km
BSO0,3 km
Alle voorzieningen in Oudwijk

Binnenkijken bij J.M. Kemperstraat 13 te Utrecht

Meer meldingen in deze omgeving

Nieuw bedrijf
April 2026
Burgemeester Reigerstraat 21, 3581KK Utrecht

Onroerend goed
Donderdag 16-4-2026
Burgemeester Reigerstraat 34, 3581KT Utrecht

Binnenkijken bij
Donderdag 16-4-2026
Homeruslaan 15, 3581MB Utrecht

Binnenkijken bij
Donderdag 16-4-2026
Iepstraat 28, 3581LL Utrecht

112 melding
Dinsdag 14-4-2026 om 21:28
Beekstraat, 3581TR Utrecht

Binnenkijken bij
Maandag 13-4-2026
Zonstraat 21E, 3581MP Utrecht

Binnenkijken bij
Vrijdag 10-4-2026
Homeruslaan 133, 3581MB Utrecht

Binnenkijken bij
Vrijdag 10-4-2026
Van der Duijnstraat 17, 3581JW Utrecht

Direct een e-mail ontvangen bij nieuwe meldingen in deze regio?

Meld je dan GRATIS aan voor de Oozo Alert service voor Oudwijk

Instellen

Meer nieuws in Oudwijk

Weten hoe eenvoudig het is om af te vallen? Zonder pillen en smeersels en zonder je in het zweet te werken!
Kijk op eenvoudig-afvallen.nl

© 2012 - 2026 OOZO.nl - info@oozo.nl - Gegevens verwijderen? | Disclaimer | Privacy statement