Woning Zonstraat 61 De Meern

Zonstraat 61, 3454AE De Meern

Ontvang updates voor De Meern-Zuid

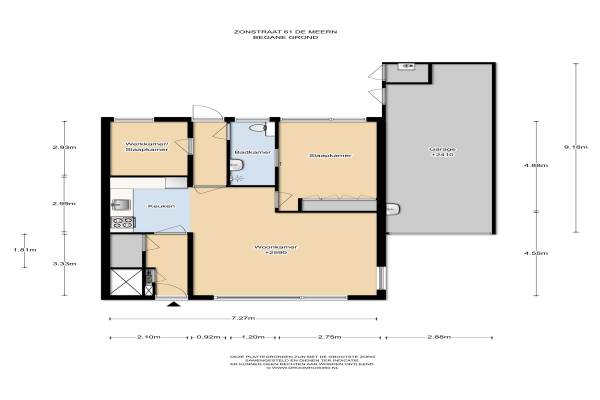
Het adres van deze woning uit 1977 is Zonstraat 61 te De Meern. Het pand heeft een oppervlakte van 68m² en heeft 3 kamers kamers waarvan 2 slaapkamers. De geschatte waarde van deze woning is € 250.000.

Bekijk alle woningen in De Meern-Zuid

Gegevens van Benedenwoning (appartement)

Bouwjaar
1977
Geschatte waarde
€ 250.000
Oppervlakte
68 m2
Inhoud
315 m3
Aantal kamers
3 kamers
Slaapkamers
2
Badkamers
1 badkamer
Soort bouw
Bestaande bouw
Eigendomssituatie
Volle eigendom
Ligging
Aan rustige weg, in centrum en in woonwijk
Tuin
Achtertuin, voortuin en zijtuin
Achtertuin
45 m² (9m diep en 5m breed)

Voorzieningen in de buurt

Boodschappen0,6 km
Grote supermarkt0,6 km
Cafetaria0,6 km
Restaurant0,8 km
Huisarts0,6 km
Ziekenhuis2,1 km
Kinderdagverblijf0,5 km
BSO0,4 km
Alle voorzieningen in De Meern-Zuid

Binnenkijken bij Zonstraat 61 te De Meern

Meer meldingen in deze omgeving

Nieuw bedrijf
December 2025
Reijerscop 28, 3454HX DE MEERN

Nieuw bedrijf
December 2025
Rijksstraatweg 103, 3454HK DE MEERN

Nieuw bedrijf
December 2025
Meentweg 41, 3454AP De Meern

Nieuw bedrijf
December 2025
Van Heemskerklaan 1, 3454EP De Meern

Nieuw bedrijf
December 2025
Van Heemskerklaan 1, 3454EP De Meern

Nieuw bedrijf
December 2025
Mauritslaan 3C, 3454XP De Meern

Nieuw bedrijf
December 2025
Van Montfoortstraat 6, 3454ER De Meern

112 melding
Maandag 22-12-2025 om 13:25
Meerndijk, 3454HR De Meern

Direct een e-mail ontvangen bij nieuwe meldingen in deze regio?

Meld je dan GRATIS aan voor de Oozo Alert service voor De Meern-Zuid

Instellen

Meer nieuws in De Meern-Zuid

Weten hoe eenvoudig het is om af te vallen? Zonder pillen en smeersels en zonder je in het zweet te werken!
Kijk op eenvoudig-afvallen.nl

© 2012 - 2025 OOZO.nl - info@oozo.nl - Gegevens verwijderen? | Disclaimer | Privacy statement