Woning De Milan Viscontilaan 200 De Meern

De Milan Viscontilaan 200, 3453SV De Meern

Ontvang updates voor Veldhuizen

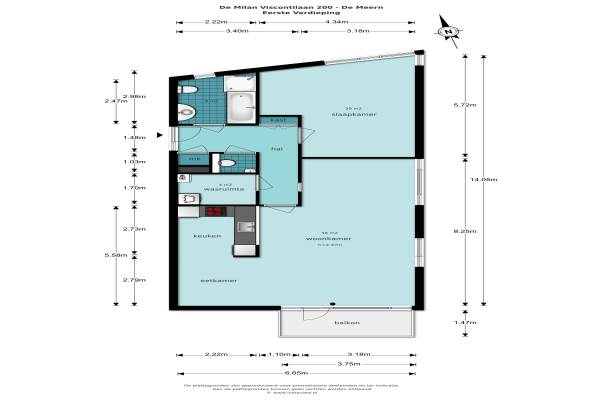
Het adres van deze woning uit 2000 is De Milan Viscontilaan 200 te De Meern. Het pand heeft een oppervlakte van 89m² en heeft 3 kamers kamers waarvan 2 slaapkamers. De geschatte waarde van deze woning is € 219.000.

Bekijk alle woningen in Veldhuizen

Gegevens van Portiekflat (appartement)

Bouwjaar
2000
Geschatte waarde
€ 219.000
Oppervlakte
89 m2
Inhoud
259 m3
Aantal kamers
3 kamers
Slaapkamers
2
Badkamers
1 badkamer en 1 apart toilet
Soort bouw
Bestaande bouw
Eigendomssituatie
Volle eigendom
Ligging
Aan water, in woonwijk en vrij uitzicht

Voorzieningen in de buurt

Boodschappen0,8 km
Grote supermarkt0,8 km
Cafetaria0,8 km
Restaurant0,7 km
Huisarts0,8 km
Ziekenhuis0,7 km
Kinderdagverblijf0,5 km
BSO0,5 km
Alle voorzieningen in Veldhuizen

Binnenkijken bij De Milan Viscontilaan 200 te De Meern

Meer meldingen in deze omgeving

Binnenkijken bij
Vrijdag 9-1-2026
Genialisweg 8, 3453HJ De Meern

Binnenkijken bij
Vrijdag 9-1-2026
Speerdistel 4, 3453TS De Meern

112 melding
Vrijdag 2-1-2026 om 21:26
Zevenblad, De Meern

112 melding
Donderdag 1-1-2026 om 04:53
Germanicusweg, 3453KE De Meern

Nieuw bedrijf
Januari 2026
Nirrewortel 102, 3453VZ DE MEERN

Nieuw bedrijf
Januari 2026
Helmkruid 7, 3453TW DE MEERN

Nieuw bedrijf
Januari 2026
Tiberiusweg 5, 3453KZ DE MEERN

Nieuw bedrijf
Januari 2026
Tiberiusweg 5, 3453KZ DE MEERN

Direct een e-mail ontvangen bij nieuwe meldingen in deze regio?

Meld je dan GRATIS aan voor de Oozo Alert service voor Veldhuizen

Instellen

Meer nieuws in Veldhuizen

Weten hoe eenvoudig het is om af te vallen? Zonder pillen en smeersels en zonder je in het zweet te werken!
Kijk op eenvoudig-afvallen.nl

© 2012 - 2026 OOZO.nl - info@oozo.nl - Gegevens verwijderen? | Disclaimer | Privacy statement