Woning Romanusweg 25 De Meern

Romanusweg 25, 3453HD De Meern

Ontvang updates voor Veldhuizen

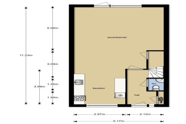
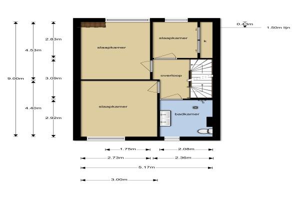
Het adres van deze woning uit 2008 is Romanusweg 25 te De Meern. Het pand heeft een oppervlakte van 133m² en een perceeloppervlakte van 143m² en heeft 5 kamers kamers waarvan 4 slaapkamers. De geschatte waarde van deze woning is € 400.000.

Bekijk alle woningen in Veldhuizen

Gegevens van Eengezinswoning, tussenwoning

Bouwjaar
2008
Geschatte waarde
€ 400.000
Oppervlakte
133 m2
Inhoud
530 m3
Aantal kamers
5 kamers
Slaapkamers
4
Badkamers
1 badkamer en 1 apart toilet
Soort bouw
Bestaande bouw
Eigendomssituatie
Volle eigendom
Ligging
In woonwijk
Tuin
Achtertuin en voortuin
Achtertuin
48 m² (8,8m diep en 5,5m breed)

Voorzieningen in de buurt

Boodschappen0,8 km
Grote supermarkt0,8 km
Cafetaria0,8 km
Restaurant0,7 km
Huisarts0,8 km
Ziekenhuis0,7 km
Kinderdagverblijf0,5 km
BSO0,5 km
Alle voorzieningen in Veldhuizen

Binnenkijken bij Romanusweg 25 te De Meern

Meer meldingen in deze omgeving

Binnenkijken bij
Dinsdag 11-11-2025
Trichterberg 51, 3453PR De Meern

Binnenkijken bij
Dinsdag 11-11-2025
Claudiuslaan 23, 3453KJ De Meern

Binnenkijken bij
Dinsdag 11-11-2025
Kloosterpark 1, 3454HJ De Meern

Binnenkijken bij
Dinsdag 11-11-2025
Claudiuslaan 109, 3453JC De Meern

Binnenkijken bij
Dinsdag 11-11-2025
Does 41, 3453MD De Meern

Binnenkijken bij
Dinsdag 11-11-2025
Germanicusweg 1, 3453KE De Meern

Binnenkijken bij
Dinsdag 11-11-2025
Malberg 27, 3453PB De Meern

Binnenkijken bij
Dinsdag 11-11-2025
Honswijkpolder 36, 3453NT De Meern

Direct een e-mail ontvangen bij nieuwe meldingen in deze regio?

Meld je dan GRATIS aan voor de Oozo Alert service voor Veldhuizen

Instellen

Meer nieuws in Veldhuizen

Weten hoe eenvoudig het is om af te vallen? Zonder pillen en smeersels en zonder je in het zweet te werken!
Kijk op eenvoudig-afvallen.nl

© 2012 - 2025 OOZO.nl - info@oozo.nl - Gegevens verwijderen? | Disclaimer | Privacy statement