Woning Claudiuslaan 21 De Meern

Claudiuslaan 21, 3453KJ De Meern

Ontvang updates voor Veldhuizen

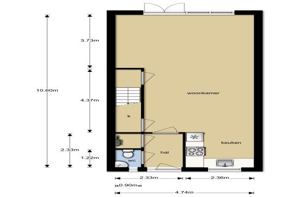
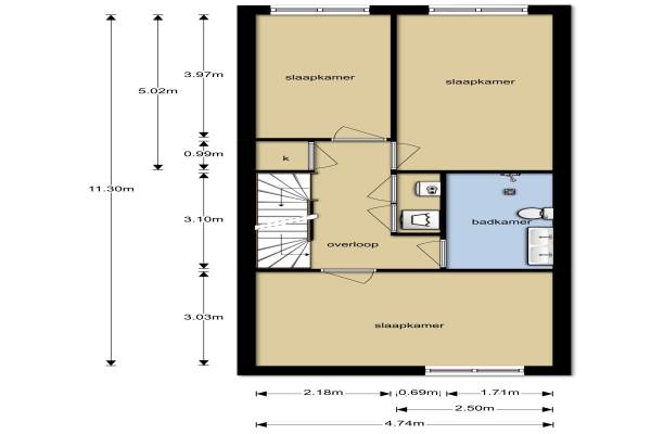
Het adres van deze woning uit 2004 is Claudiuslaan 21 te De Meern. Het pand heeft een oppervlakte van 133m² en een perceeloppervlakte van 112m² en heeft 5 kamers kamers waarvan 4 slaapkamers. De geschatte waarde van deze woning is € 339.500.

Bekijk alle woningen in Veldhuizen

Gegevens van Eengezinswoning, tussenwoning

Bouwjaar
2004
Geschatte waarde
€ 339.500
Oppervlakte
133 m2
Inhoud
466 m3
Aantal kamers
5 kamers
Slaapkamers
4
Badkamers
1 badkamer en 1 apart toilet
Soort bouw
Bestaande bouw
Eigendomssituatie
Volle eigendom
Ligging
Aan rustige weg en in woonwijk
Tuin
Achtertuin
Achtertuin
25 m² (5,07m diep en 5m breed)

Voorzieningen in de buurt

Boodschappen0,8 km
Grote supermarkt0,8 km
Cafetaria0,8 km
Restaurant0,7 km
Huisarts0,8 km
Ziekenhuis0,7 km
Kinderdagverblijf0,5 km
BSO0,5 km
Alle voorzieningen in Veldhuizen

Binnenkijken bij Claudiuslaan 21 te De Meern

Meer meldingen in deze omgeving

112 melding
Dinsdag 4-11-2025 om 07:10
Heldammersingel, De Meern

112 melding
Dinsdag 4-11-2025 om 07:10
Heldammersingel, De Meern

112 melding
Dinsdag 4-11-2025 om 07:10
Heldammersingel, De Meern

112 melding
Zondag 2-11-2025 om 19:30
Sleutelbloem, 3453VS De Meern

112 melding
Zaterdag 1-11-2025 om 11:28
Titushof, De Meern

112 melding
Donderdag 30-10-2025 om 07:43
Drususlaan, De Meern

Binnenkijken bij
Donderdag 30-10-2025
Zevenblad 91, 3453TK De Meern

Binnenkijken bij
Woensdag 29-10-2025
De Milan Viscontilaan 90, 3453TC De Meern

Direct een e-mail ontvangen bij nieuwe meldingen in deze regio?

Meld je dan GRATIS aan voor de Oozo Alert service voor Veldhuizen

Instellen

Meer nieuws in Veldhuizen

Weten hoe eenvoudig het is om af te vallen? Zonder pillen en smeersels en zonder je in het zweet te werken!
Kijk op eenvoudig-afvallen.nl

© 2012 - 2025 OOZO.nl - info@oozo.nl - Gegevens verwijderen? | Disclaimer | Privacy statement