Woning Secundusweg 67 De Meern

Secundusweg 67, 3453JM De Meern

Ontvang updates voor Veldhuizen

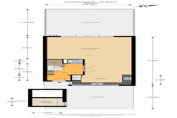
Het adres van deze woning uit 2005 is Secundusweg 67 te De Meern. Het pand heeft een oppervlakte van 148m² en een perceeloppervlakte van 157m² en heeft 4 kamers kamers waarvan 3 slaapkamers. De geschatte waarde van deze woning is € 435.000.

Bekijk alle woningen in Veldhuizen

Gegevens van Eengezinswoning, tussenwoning

Bouwjaar
2005
Geschatte waarde
€ 435.000
Oppervlakte
148 m2
Inhoud
520 m3
Aantal kamers
4 kamers
Slaapkamers
3
Badkamers
1 badkamer en 2 aparte toiletten
Soort bouw
Bestaande bouw
Eigendomssituatie
Volle eigendom
Ligging
Aan rustige weg en in woonwijk
Tuin
Achtertuin en voortuin
Achtertuin
39 m² (6,74m diep en 5,74m breed)

Voorzieningen in de buurt

Boodschappen0,8 km
Grote supermarkt0,8 km
Cafetaria0,8 km
Restaurant0,7 km
Huisarts0,8 km
Ziekenhuis0,7 km
Kinderdagverblijf0,5 km
BSO0,5 km
Alle voorzieningen in Veldhuizen

Binnenkijken bij Secundusweg 67 te De Meern

Meer meldingen in deze omgeving

Binnenkijken bij
Woensdag 25-2-2026
Aardaker 12, 3453VV De Meern

112 melding
Dinsdag 24-2-2026 om 23:22
Kruiswortel, De Meern

112 melding
Dinsdag 24-2-2026 om 23:22
Kruiswortel, De Meern

Nieuw bedrijf
Februari 2026
Adderwortel 26, 3453VG De Meern

Nieuw bedrijf
Februari 2026
Claudiuslaan 10, 3453KL De Meern

Nieuw bedrijf
Februari 2026
Honswijkpolder 23, 3453NS De Meern

Nieuw bedrijf
Februari 2026
Honswijkpolder 23, 3453NS De Meern

Binnenkijken bij
Zondag 22-2-2026
Wiericke 19, 3453MX De Meern

Direct een e-mail ontvangen bij nieuwe meldingen in deze regio?

Meld je dan GRATIS aan voor de Oozo Alert service voor Veldhuizen

Instellen

Meer nieuws in Veldhuizen

Weten hoe eenvoudig het is om af te vallen? Zonder pillen en smeersels en zonder je in het zweet te werken!
Kijk op eenvoudig-afvallen.nl

© 2012 - 2026 OOZO.nl - info@oozo.nl - Gegevens verwijderen? | Disclaimer | Privacy statement