Woning Van Wanroystraat 11 Vleuten

Van Wanroystraat 11, 3451BP Vleuten

Ontvang updates voor Vleuten

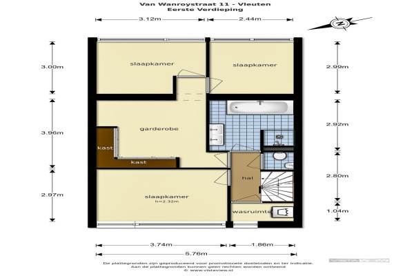
Het adres van deze woning is Van Wanroystraat 11 te Vleuten. Het pand heeft een oppervlakte van 141m² en een perceeloppervlakte van 216m² en heeft 7 kamers kamers waarvan 5 slaapkamers. De geschatte waarde van deze woning is € 350.000.

Bekijk alle woningen in Vleuten

Gegevens van Eengezinswoning, tussenwoning

Geschatte waarde
€ 350.000
Oppervlakte
141 m2
Inhoud
462 m3
Aantal kamers
7 kamers
Slaapkamers
5
Badkamers
1 badkamer en 2 aparte toiletten
Soort bouw
Bestaande bouw
Eigendomssituatie
Volle eigendom
Ligging
Aan rustige weg
Tuin
Achtertuin en voortuin
Achtertuin
44 m² (8m diep en 5,5m breed)

Voorzieningen in de buurt

Boodschappen0,6 km
Grote supermarkt0,7 km
Cafetaria0,7 km
Restaurant0,6 km
Huisarts0,6 km
Ziekenhuis3,8 km
Kinderdagverblijf0,5 km
BSO0,4 km
Alle voorzieningen in Vleuten

Binnenkijken bij Van Wanroystraat 11 te Vleuten

Meer meldingen in deze omgeving

Binnenkijken bij
Vrijdag 14-11-2025
Vletland 9, 3451VC Vleuten

Binnenkijken bij
Vrijdag 14-11-2025
Koningshof 4, 3451LE Vleuten

Binnenkijken bij
Vrijdag 14-11-2025
Albert Schweitzerlaan 43, 3451EB Vleuten

Binnenkijken bij
Vrijdag 14-11-2025
Hindersteinlaan 77, 3451EW Vleuten

Binnenkijken bij
Vrijdag 14-11-2025
Frederik van Eedenstraat 25, 3451AX Vleuten

Nieuw bedrijf
November 2025
De Geer 26, 3451KA Vleuten

Nieuw bedrijf
November 2025
De Geer 17, 3451KA Vleuten

Nieuw bedrijf
November 2025
Camphuysenstraat 55, 3451BC Vleuten

Direct een e-mail ontvangen bij nieuwe meldingen in deze regio?

Meld je dan GRATIS aan voor de Oozo Alert service voor Vleuten

Instellen

Meer nieuws in Vleuten

Weten hoe eenvoudig het is om af te vallen? Zonder pillen en smeersels en zonder je in het zweet te werken!
Kijk op eenvoudig-afvallen.nl

© 2012 - 2025 OOZO.nl - info@oozo.nl - Gegevens verwijderen? | Disclaimer | Privacy statement