Woning Stationsstraat 9 Vleuten

Stationsstraat 9, 3451BV Vleuten

Ontvang updates voor Vleuten

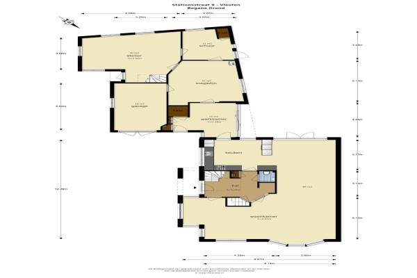
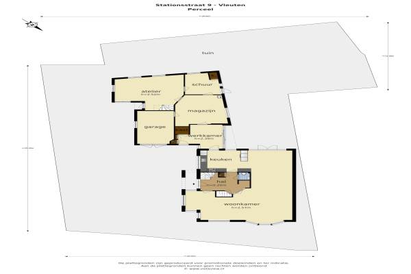
Het adres van deze woning uit 1999 is Stationsstraat 9 te Vleuten. Het pand heeft een oppervlakte van 318m² en een perceeloppervlakte van 871m² en heeft 9 kamers kamers waarvan 5 slaapkamers. De geschatte waarde van deze woning is € 895.000.

Bekijk alle woningen in Vleuten

Gegevens van Villa, vrijstaande woning

Bouwjaar
1999
Geschatte waarde
€ 895.000
Oppervlakte
318 m2
Inhoud
1300 m3
Aantal kamers
9 kamers
Slaapkamers
5
Badkamers
1 badkamer en 2 aparte toiletten
Soort bouw
Bestaande bouw
Eigendomssituatie
Volle eigendom
Ligging
Aan rustige weg, in centrum en in woonwijk
Tuin
Tuin rondom

Voorzieningen in de buurt

Boodschappen0,6 km
Grote supermarkt0,7 km
Cafetaria0,7 km
Restaurant0,6 km
Huisarts0,6 km
Ziekenhuis3,8 km
Kinderdagverblijf0,5 km
BSO0,4 km
Alle voorzieningen in Vleuten

Binnenkijken bij Stationsstraat 9 te Vleuten

Meer meldingen in deze omgeving

112 melding
Maandag 17-11-2025 om 13:50
Burgemeester Van der Heidelaan, Vleuten

112 melding
Maandag 17-11-2025 om 13:47
Burgemeester Van der Heidelaan, Vleuten

Nieuw bedrijf
November 2025
De Geer 26, 3451KA Vleuten

Nieuw bedrijf
November 2025
De Geer 17, 3451KA Vleuten

Nieuw bedrijf
November 2025
Camphuysenstraat 55, 3451BC Vleuten

Nieuw bedrijf
November 2025
Nieuwe Vaart 10, 3451AJ Vleuten

Nieuw bedrijf
November 2025
Odenveltlaan 4, 3451ZN Vleuten

Nieuw bedrijf
November 2025
Gulden Hoeve 40, 3451TG Vleuten

Direct een e-mail ontvangen bij nieuwe meldingen in deze regio?

Meld je dan GRATIS aan voor de Oozo Alert service voor Vleuten

Instellen

Meer nieuws in Vleuten

Weten hoe eenvoudig het is om af te vallen? Zonder pillen en smeersels en zonder je in het zweet te werken!
Kijk op eenvoudig-afvallen.nl

© 2012 - 2025 OOZO.nl - info@oozo.nl - Gegevens verwijderen? | Disclaimer | Privacy statement