Woning Nieuwe Vaart 18 Vleuten

Nieuwe Vaart 18, 3451AJ Vleuten

Ontvang updates voor Vleuten

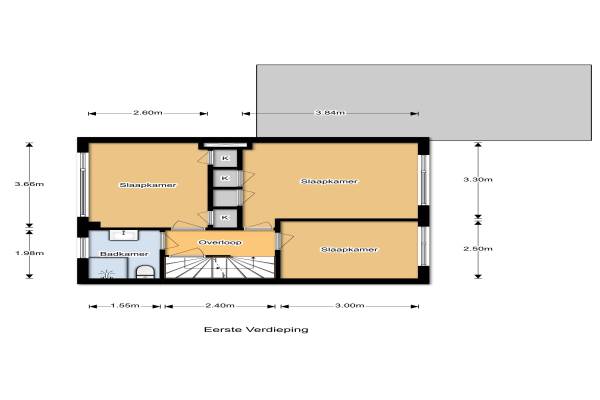
Het adres van deze woning uit 1970 is Nieuwe Vaart 18 te Vleuten. Het pand heeft een oppervlakte van 130m² en een perceeloppervlakte van 209m² en heeft 5 kamers kamers waarvan 4 slaapkamers. De geschatte waarde van deze woning is € 339.000.

Bekijk alle woningen in Vleuten

Gegevens van Eengezinswoning, hoekwoning

Bouwjaar
1970
Geschatte waarde
€ 339.000
Oppervlakte
130 m2
Inhoud
350 m3
Aantal kamers
5 kamers
Slaapkamers
4
Badkamers
1 apart toilet
Soort bouw
Bestaande bouw
Eigendomssituatie
Volle eigendom
Ligging
Aan rustige weg en in woonwijk
Tuin
Achtertuin en voortuin
Achtertuin
72 m² (8m diep en 9m breed)

Voorzieningen in de buurt

Boodschappen0,6 km
Grote supermarkt0,7 km
Cafetaria0,7 km
Restaurant0,6 km
Huisarts0,6 km
Ziekenhuis3,8 km
Kinderdagverblijf0,5 km
BSO0,4 km
Alle voorzieningen in Vleuten

Binnenkijken bij Nieuwe Vaart 18 te Vleuten

Meer meldingen in deze omgeving

Binnenkijken bij
Vrijdag 14-11-2025
Vletland 9, 3451VC Vleuten

Binnenkijken bij
Vrijdag 14-11-2025
Koningshof 4, 3451LE Vleuten

Binnenkijken bij
Vrijdag 14-11-2025
Albert Schweitzerlaan 43, 3451EB Vleuten

Binnenkijken bij
Vrijdag 14-11-2025
Hindersteinlaan 77, 3451EW Vleuten

Binnenkijken bij
Vrijdag 14-11-2025
Frederik van Eedenstraat 25, 3451AX Vleuten

Nieuw bedrijf
November 2025
De Geer 26, 3451KA Vleuten

Nieuw bedrijf
November 2025
De Geer 17, 3451KA Vleuten

Nieuw bedrijf
November 2025
Camphuysenstraat 55, 3451BC Vleuten

Direct een e-mail ontvangen bij nieuwe meldingen in deze regio?

Meld je dan GRATIS aan voor de Oozo Alert service voor Vleuten

Instellen

Meer nieuws in Vleuten

Weten hoe eenvoudig het is om af te vallen? Zonder pillen en smeersels en zonder je in het zweet te werken!
Kijk op eenvoudig-afvallen.nl

© 2012 - 2025 OOZO.nl - info@oozo.nl - Gegevens verwijderen? | Disclaimer | Privacy statement