Woning W.A. Vultostraat 33 Utrecht

W.A. Vultostraat 33, 3523TS Utrecht

Ontvang updates voor Oud Hoograven-Noord

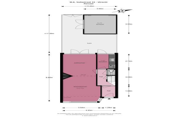
Het adres van deze woning uit 1936 is W.A. Vultostraat 33 te Utrecht. Het pand heeft een oppervlakte van 98m² en een perceeloppervlakte van 152m² en heeft 5 kamers kamers waarvan 3 slaapkamers. De geschatte waarde van deze woning is € 350.000.

Bekijk alle woningen in Oud Hoograven-Noord

Gegevens van Eengezinswoning, tussenwoning

Bouwjaar
1936
Geschatte waarde
€ 350.000
Oppervlakte
98 m2
Inhoud
347 m3
Aantal kamers
5 kamers
Slaapkamers
3
Badkamers
1 badkamer en 1 apart toilet
Soort bouw
Bestaande bouw
Eigendomssituatie
Volle eigendom
Ligging
In woonwijk
Tuin
Achtertuin
Achtertuin
27 m² (7,2m diep en 5,2m breed)

Voorzieningen in de buurt

Boodschappen0,2 km
Grote supermarkt0,4 km
Cafetaria0,2 km
Restaurant0,2 km
Huisarts0,4 km
Ziekenhuis2,4 km
Kinderdagverblijf0,3 km
BSO0,3 km
Alle voorzieningen in Oud Hoograven-Noord

Binnenkijken bij W.A. Vultostraat 33 te Utrecht

Meer meldingen in deze omgeving

Nieuw bedrijf
December 2025
W.A. Vultostraat 47, 3523TT Utrecht

Nieuw bedrijf
December 2025
Jan van Arkelstraat 5, 3523VE Utrecht

Binnenkijken bij
Woensdag 3-12-2025
Hoogravenseweg 54, 3523TM Utrecht

Binnenkijken bij
Dinsdag 2-12-2025
Noordeindestraat 5, 3523VJ Utrecht

Nieuw bedrijf
November 2025
Soestdijkstraat 8, 3523VM Utrecht

Binnenkijken bij
Vrijdag 21-11-2025
Julianaweg 467, 3523XG Utrecht

Binnenkijken bij
Vrijdag 21-11-2025
Hoogravenseweg 5, 3523TG Utrecht

Binnenkijken bij
Vrijdag 14-11-2025
Julianaweg 303, 3523XB Utrecht

Direct een e-mail ontvangen bij nieuwe meldingen in deze regio?

Meld je dan GRATIS aan voor de Oozo Alert service voor Oud Hoograven-Noord

Instellen

Meer nieuws in Oud Hoograven-Noord

Weten hoe eenvoudig het is om af te vallen? Zonder pillen en smeersels en zonder je in het zweet te werken!
Kijk op eenvoudig-afvallen.nl

© 2012 - 2025 OOZO.nl - info@oozo.nl - Gegevens verwijderen? | Disclaimer | Privacy statement