Woning Verlengde Hoogravenseweg 290 Utrecht

Verlengde Hoogravenseweg 290, 3523KJ Utrecht

Ontvang updates voor Oud Hoograven-Noord

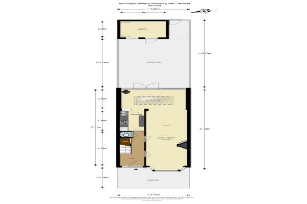
Het adres van deze woning is Verlengde Hoogravenseweg 290 te Utrecht. Het pand heeft een oppervlakte van 123m² en een perceeloppervlakte van 127m² en heeft 6 kamers kamers waarvan 5 slaapkamers. De geschatte waarde van deze woning is € 425.000.

Bekijk alle woningen in Oud Hoograven-Noord

Gegevens van Eengezinswoning, tussenwoning

Geschatte waarde
€ 425.000
Oppervlakte
123 m2
Inhoud
415 m3
Aantal kamers
6 kamers
Slaapkamers
5
Badkamers
2 badkamers en 1 apart toilet
Soort bouw
Bestaande bouw
Eigendomssituatie
Volle eigendom
Ligging
In woonwijk
Tuin
Achtertuin en voortuin
Achtertuin
52 m² (10m diep en 5,2m breed)

Voorzieningen in de buurt

Boodschappen0,2 km
Grote supermarkt0,4 km
Cafetaria0,2 km
Restaurant0,2 km
Huisarts0,4 km
Ziekenhuis2,4 km
Kinderdagverblijf0,3 km
BSO0,3 km
Alle voorzieningen in Oud Hoograven-Noord

Binnenkijken bij Verlengde Hoogravenseweg 290 te Utrecht

Meer meldingen in deze omgeving

Binnenkijken bij
Donderdag 30-10-2025
Detmoldstraat 31, 3523GA Utrecht

Binnenkijken bij
Woensdag 29-10-2025
Burgemeester Smitsstraat 20, 3523KL Utrecht

Binnenkijken bij
Woensdag 29-10-2025
Van Lippe Biesterfeldstraat 24, 3523VC Utrecht

Nieuw bedrijf
Oktober 2025
Verlengde Hoogravenseweg 238, 3523KH Utrecht

Binnenkijken bij
Donderdag 9-10-2025
Broeder Alarmstraat 87, 3523TP Utrecht

Nieuw bedrijf
Oktober 2025
Van Lippe Biesterfeldstraat 10, 3523VB Utrecht

Binnenkijken bij
Donderdag 2-10-2025
Julianaweg 467, 3523XG Utrecht

Binnenkijken bij
Zaterdag 27-9-2025
Hoogravenseweg 6, 3523TL Utrecht

Direct een e-mail ontvangen bij nieuwe meldingen in deze regio?

Meld je dan GRATIS aan voor de Oozo Alert service voor Oud Hoograven-Noord

Instellen

Meer nieuws in Oud Hoograven-Noord

Weten hoe eenvoudig het is om af te vallen? Zonder pillen en smeersels en zonder je in het zweet te werken!
Kijk op eenvoudig-afvallen.nl

© 2012 - 2025 OOZO.nl - info@oozo.nl - Gegevens verwijderen? | Disclaimer | Privacy statement