Woning Bergstraat 19 Valkenburg Lb

Bergstraat 19, 6301AB Valkenburg Lb

Ontvang updates voor Sibbe

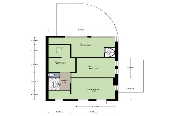
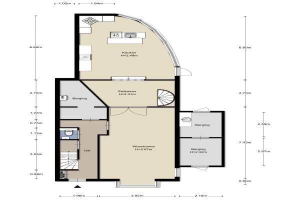
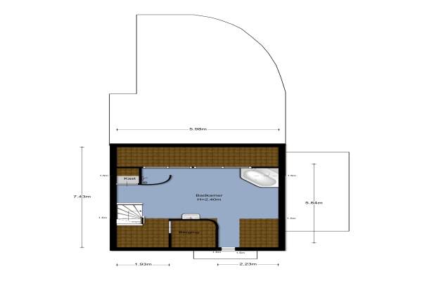
Het adres van deze woning uit 1952 is Bergstraat 19 te Valkenburg Lb. Het pand heeft een oppervlakte van 181m² en een perceeloppervlakte van 450m² en heeft 6 kamers kamers waarvan 4 slaapkamers. De geschatte waarde van deze woning is € 369.000.

Bekijk alle woningen in Sibbe

Gegevens van Eengezinswoning, halfvrijstaande woning

Bouwjaar
1952
Geschatte waarde
€ 369.000
Oppervlakte
181 m2
Inhoud
670 m3
Aantal kamers
6 kamers
Slaapkamers
4
Soort bouw
Bestaande bouw
Eigendomssituatie
Volle eigendom
Ligging
Aan rustige weg en in woonwijk
Tuin
Achtertuin, voortuin en zijtuin

Voorzieningen in de buurt

Boodschappen2,4 km
Grote supermarkt2,7 km
Cafetaria2,2 km
Restaurant2,2 km
Huisarts2,4 km
Ziekenhuis7,7 km
Kinderdagverblijf0,4 km
BSO2,8 km
Alle voorzieningen in Sibbe

Binnenkijken bij Bergstraat 19 te Valkenburg Lb

Meer meldingen in deze omgeving

Binnenkijken bij
Woensdag 29-10-2025
Sibberkerkstraat 13, 6301AT Valkenburg (LI)

Binnenkijken bij
Donderdag 9-10-2025
Lokerstraat 22, 6301AL Valkenburg (LI)

Binnenkijken bij
Donderdag 9-10-2025
Hemelrijkstraat 15, 6301AK Valkenburg (LI)

112 melding
Vrijdag 12-9-2025 om 10:05
Beckerswei, 6301AX Valkenburg

112 melding
Vrijdag 12-9-2025 om 10:03
Beckerswei, 6301AX Valkenburg

112 melding
Vrijdag 12-9-2025 om 09:05
Beckerswei, 6301AX Valkenburg

Nieuw bedrijf
Juli 2025
Sibberkerkstraat 102, 6301AW VALKENBURG

Binnenkijken bij
Vrijdag 18-7-2025
Bergstraat 88, 6301AE Valkenburg (LI)

Direct een e-mail ontvangen bij nieuwe meldingen in deze regio?

Meld je dan GRATIS aan voor de Oozo Alert service voor Sibbe

Instellen

Meer nieuws in Sibbe

Weten hoe eenvoudig het is om af te vallen? Zonder pillen en smeersels en zonder je in het zweet te werken!
Kijk op eenvoudig-afvallen.nl

© 2012 - 2025 OOZO.nl - info@oozo.nl - Gegevens verwijderen? | Disclaimer | Privacy statement