Woning Castor 23 Veenendaal

Castor 23, 3902SC Veenendaal

Ontvang updates voor Dragonder-Zuid

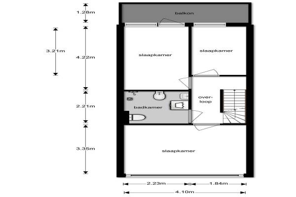
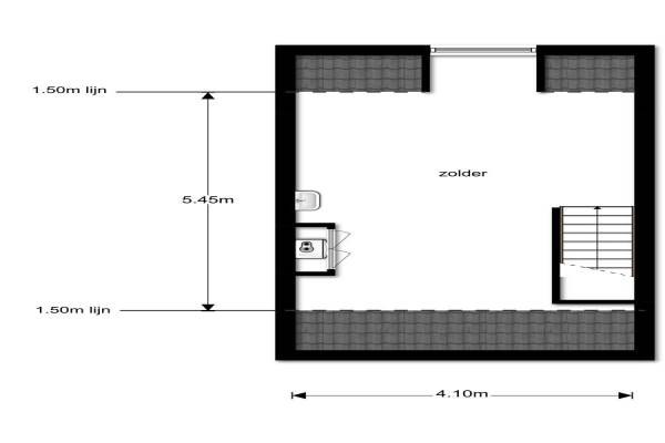
Het adres van deze woning uit 1972 is Castor 23 te Veenendaal. Het pand heeft een oppervlakte van 112m² en een perceeloppervlakte van 200m² en heeft 5 kamers kamers waarvan 4 slaapkamers. De geschatte waarde van deze woning is € 209.500.

Bekijk alle woningen in Dragonder-Zuid

Gegevens van Eengezinswoning, hoekwoning

Bouwjaar
1972
Geschatte waarde
€ 209.500
Oppervlakte
112 m2
Inhoud
345 m3
Aantal kamers
5 kamers
Slaapkamers
4
Badkamers
2 badkamers en 1 apart toilet
Soort bouw
Bestaande bouw
Eigendomssituatie
Volle eigendom
Ligging
In woonwijk
Tuin
Achtertuin, voortuin en zijtuin
Achtertuin
60 m² (8,5m diep en 7m breed)

Voorzieningen in de buurt

Boodschappen0,8 km
Grote supermarkt0,4 km
Cafetaria0,3 km
Restaurant0,7 km
Huisarts0,5 km
Ziekenhuis2,1 km
Kinderdagverblijf1,1 km
BSO0,4 km
Alle voorzieningen in Dragonder-Zuid

Binnenkijken bij Castor 23 te Veenendaal

Meer meldingen in deze omgeving

Nieuw bedrijf
November 2025
Orion 1, 3902SB Veenendaal

Binnenkijken bij
Dinsdag 11-11-2025
Zuiderkruis 180, 3902XE Veenendaal

Binnenkijken bij
Dinsdag 11-11-2025
Noorderkroon 86, 3902VG Veenendaal

Nieuw bedrijf
November 2025
Zuiderkruis 145, 3902WE Veenendaal

112 melding
Vrijdag 7-11-2025 om 21:20
Gilbert van Schoonbekestraat, Veenendaal

Binnenkijken bij
Donderdag 30-10-2025
Zuiderkruis 198, 3902XE Veenendaal

Nieuw bedrijf
Oktober 2025
Pollux 6D, 3902TN Veenendaal

Binnenkijken bij
Woensdag 29-10-2025
Pollux 141, 3902TD Veenendaal

Direct een e-mail ontvangen bij nieuwe meldingen in deze regio?

Meld je dan GRATIS aan voor de Oozo Alert service voor Dragonder-Zuid

Instellen

Meer nieuws in Dragonder-Zuid

Weten hoe eenvoudig het is om af te vallen? Zonder pillen en smeersels en zonder je in het zweet te werken!
Kijk op eenvoudig-afvallen.nl

© 2012 - 2025 OOZO.nl - info@oozo.nl - Gegevens verwijderen? | Disclaimer | Privacy statement