Woning Zuiderkruis 8 Veenendaal

Zuiderkruis 8, 3902XA Veenendaal

Ontvang updates voor Dragonder-Zuid

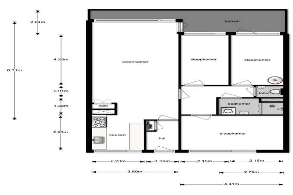
Het adres van deze woning uit 1971 is Zuiderkruis 8 te Veenendaal. Het pand heeft een oppervlakte van 86m² en heeft 4 kamers kamers waarvan 3 slaapkamers. De geschatte waarde van deze woning is € 169.500.

Bekijk alle woningen in Dragonder-Zuid

Gegevens van Galerijflat (appartement)

Bouwjaar
1971
Geschatte waarde
€ 169.500
Oppervlakte
86 m2
Inhoud
250 m3
Aantal kamers
4 kamers
Slaapkamers
3
Badkamers
1 badkamer en 1 apart toilet
Soort bouw
Bestaande bouw
Eigendomssituatie
Volle eigendom
Ligging
In woonwijk

Voorzieningen in de buurt

Boodschappen0,8 km
Grote supermarkt0,4 km
Cafetaria0,3 km
Restaurant0,7 km
Huisarts0,5 km
Ziekenhuis2,1 km
Kinderdagverblijf1,1 km
BSO0,4 km
Alle voorzieningen in Dragonder-Zuid

Binnenkijken bij Zuiderkruis 8 te Veenendaal

Meer meldingen in deze omgeving

Nieuw bedrijf
November 2025
Orion 1, 3902SB Veenendaal

Binnenkijken bij
Dinsdag 11-11-2025
Zuiderkruis 180, 3902XE Veenendaal

Binnenkijken bij
Dinsdag 11-11-2025
Noorderkroon 86, 3902VG Veenendaal

Nieuw bedrijf
November 2025
Zuiderkruis 145, 3902WE Veenendaal

112 melding
Vrijdag 7-11-2025 om 21:20
Gilbert van Schoonbekestraat, Veenendaal

Binnenkijken bij
Donderdag 30-10-2025
Zuiderkruis 198, 3902XE Veenendaal

Nieuw bedrijf
Oktober 2025
Pollux 6D, 3902TN Veenendaal

Binnenkijken bij
Woensdag 29-10-2025
Pollux 141, 3902TD Veenendaal

Direct een e-mail ontvangen bij nieuwe meldingen in deze regio?

Meld je dan GRATIS aan voor de Oozo Alert service voor Dragonder-Zuid

Instellen

Meer nieuws in Dragonder-Zuid

Weten hoe eenvoudig het is om af te vallen? Zonder pillen en smeersels en zonder je in het zweet te werken!
Kijk op eenvoudig-afvallen.nl

© 2012 - 2025 OOZO.nl - info@oozo.nl - Gegevens verwijderen? | Disclaimer | Privacy statement