Woning Stadhouderslaan 115 Veenendaal

Stadhouderslaan 115, 3905HC Veenendaal

Ontvang updates voor De Pol

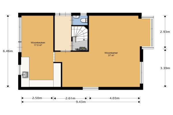
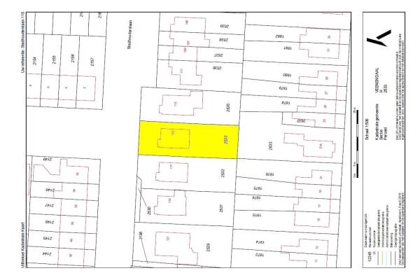
Het adres van deze woning uit 1985 is Stadhouderslaan 115 te Veenendaal. Het pand heeft een oppervlakte van 143m² en een perceeloppervlakte van 441m² en heeft 8 kamers kamers waarvan 4 slaapkamers. De geschatte waarde van deze woning is € 475.000.

Bekijk alle woningen in De Pol

Gegevens van Eengezinswoning, vrijstaande woning

Bouwjaar
1985
Geschatte waarde
€ 475.000
Oppervlakte
143 m2
Inhoud
450 m3
Aantal kamers
8 kamers
Slaapkamers
4
Badkamers
1 badkamer en 2 aparte toiletten
Soort bouw
Bestaande bouw
Eigendomssituatie
Volle eigendom
Ligging
Aan rustige weg, in woonwijk en vrij uitzicht
Tuin
Tuin rondom

Voorzieningen in de buurt

Boodschappen0,3 km
Grote supermarkt0,7 km
Cafetaria0,3 km
Restaurant0,4 km
Huisarts0,7 km
Ziekenhuis2,3 km
Kinderdagverblijf0,3 km
BSO0,3 km
Alle voorzieningen in De Pol

Binnenkijken bij Stadhouderslaan 115 te Veenendaal

Meer meldingen in deze omgeving

112 melding
Maandag 16-3-2026 om 08:53
Baronesselaan, 3905HH Veenendaal

Binnenkijken bij
Zaterdag 14-3-2026
Markiezenhof 36, 3905HL Veenendaal

Nieuw bedrijf
Maart 2026
Stadhouderslaan 18, 3905HD Veenendaal

Nieuw bedrijf
Februari 2026
Stadhouderslaan 38, 3905HD Veenendaal

Binnenkijken bij
Zaterdag 14-2-2026
Prins Bernhardlaan 179, 3905JC Veenendaal

Binnenkijken bij
Zondag 1-2-2026
Prinsesselaan 11, 3905GK Veenendaal

Binnenkijken bij
Woensdag 28-1-2026
Gravinnelaan 5, 3905HG Veenendaal

Nieuw bedrijf
Januari 2026
Mulderslaan 10, 3905GC Veenendaal

Direct een e-mail ontvangen bij nieuwe meldingen in deze regio?

Meld je dan GRATIS aan voor de Oozo Alert service voor De Pol

Instellen

Meer nieuws in De Pol

Weten hoe eenvoudig het is om af te vallen? Zonder pillen en smeersels en zonder je in het zweet te werken!
Kijk op eenvoudig-afvallen.nl

© 2012 - 2026 OOZO.nl - info@oozo.nl - Gegevens verwijderen? | Disclaimer | Privacy statement