Woning Hertogenlaan 52 Veenendaal

Hertogenlaan 52, 3905HK Veenendaal

Ontvang updates voor De Pol

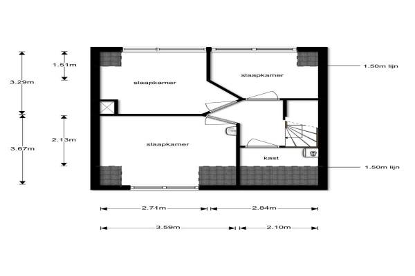
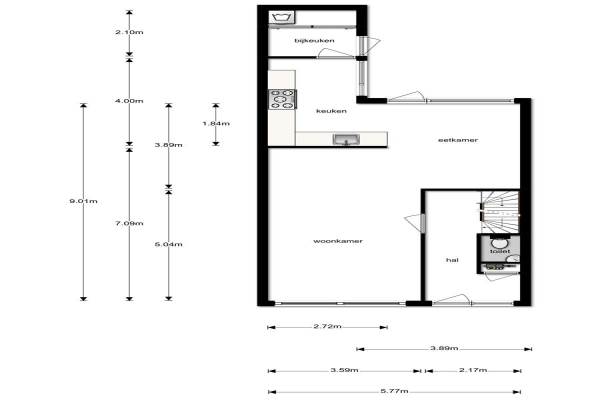
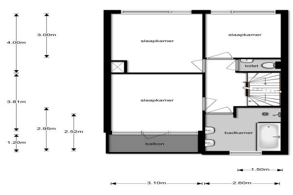
Het adres van deze woning uit 1974 is Hertogenlaan 52 te Veenendaal. Het pand heeft een oppervlakte van 147m² en een perceeloppervlakte van 161m² en heeft 7 kamers kamers waarvan 6 slaapkamers. De geschatte waarde van deze woning is € 295.000.

Bekijk alle woningen in De Pol

Gegevens van Eengezinswoning, tussenwoning

Bouwjaar
1974
Geschatte waarde
€ 295.000
Oppervlakte
147 m2
Inhoud
455 m3
Aantal kamers
7 kamers
Slaapkamers
6
Badkamers
1 badkamer en 2 aparte toiletten
Soort bouw
Bestaande bouw
Eigendomssituatie
Volle eigendom
Ligging
In woonwijk
Tuin
Achtertuin en voortuin
Achtertuin
75 m² (12,5m diep en 6m breed)

Voorzieningen in de buurt

Boodschappen0,3 km
Grote supermarkt0,7 km
Cafetaria0,3 km
Restaurant0,4 km
Huisarts0,7 km
Ziekenhuis2,3 km
Kinderdagverblijf0,3 km
BSO0,3 km
Alle voorzieningen in De Pol

Binnenkijken bij Hertogenlaan 52 te Veenendaal

Meer meldingen in deze omgeving

Nieuw bedrijf
December 2025
Koninginnelaan 69, 3905GG Veenendaal

112 melding
Dinsdag 2-12-2025 om 23:31
Regentesselaan, Veenendaal

112 melding
Dinsdag 2-12-2025 om 22:50
Regentesselaan, Veenendaal

112 melding
Dinsdag 2-12-2025 om 20:49
Regentesselaan, Veenendaal

Binnenkijken bij
Woensdag 26-11-2025
Nieuweweg 154, 3905LR Veenendaal

Binnenkijken bij
Vrijdag 21-11-2025
Regentesselaan 43, 3905GT Veenendaal

Binnenkijken bij
Woensdag 19-11-2025
Markiezenhof 11, 3905HL Veenendaal

Onroerend goed
Dinsdag 11-11-2025
Nieuweweg 140, 3905LR Veenendaal

Direct een e-mail ontvangen bij nieuwe meldingen in deze regio?

Meld je dan GRATIS aan voor de Oozo Alert service voor De Pol

Instellen

Meer nieuws in De Pol

Weten hoe eenvoudig het is om af te vallen? Zonder pillen en smeersels en zonder je in het zweet te werken!
Kijk op eenvoudig-afvallen.nl

© 2012 - 2025 OOZO.nl - info@oozo.nl - Gegevens verwijderen? | Disclaimer | Privacy statement