Woning Gortstraat 70 Veenendaal

Gortstraat 70, 3905BG Veenendaal

Ontvang updates voor 't Hoorntje

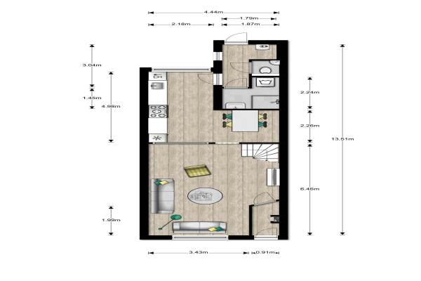
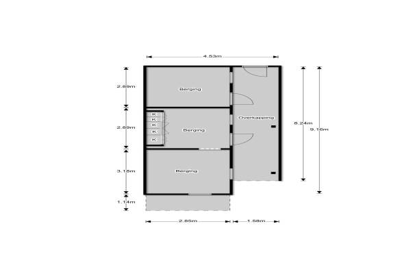
Het adres van deze woning uit 1926 is Gortstraat 70 te Veenendaal. Het pand heeft een oppervlakte van 117m² en een perceeloppervlakte van 213m² en heeft 6 kamers kamers waarvan 5 slaapkamers. De geschatte waarde van deze woning is € 229.950.

Bekijk alle woningen in 't Hoorntje

Gegevens van Eengezinswoning, tussenwoning

Bouwjaar
1926
Geschatte waarde
€ 229.950
Oppervlakte
117 m2
Inhoud
350 m3
Aantal kamers
6 kamers
Slaapkamers
5
Badkamers
1 badkamer en 1 apart toilet
Soort bouw
Bestaande bouw
Eigendomssituatie
Volle eigendom
Ligging
In woonwijk
Tuin
Achtertuin en voortuin
Achtertuin
131 m² (29m diep en 4,5m breed)

Voorzieningen in de buurt

Boodschappen0,3 km
Grote supermarkt0,4 km
Cafetaria0,3 km
Restaurant0,3 km
Huisarts1,1 km
Ziekenhuis2,1 km
Kinderdagverblijf0,5 km
BSO0,8 km
Alle voorzieningen in 't Hoorntje

Binnenkijken bij Gortstraat 70 te Veenendaal

Meer meldingen in deze omgeving

Binnenkijken bij
Donderdag 30-10-2025
Rozenstraat 32, 3905BN Veenendaal

Binnenkijken bij
Donderdag 30-10-2025
J.P.C. Leinweberstraat 54, 3905EJ Veenendaal

Binnenkijken bij
Woensdag 29-10-2025
1e Melmseweg 85, 3905MB Veenendaal

Binnenkijken bij
Woensdag 29-10-2025
Holleweg 16, 3905LG Veenendaal

Binnenkijken bij
Woensdag 29-10-2025
Gortstraat 69, 3905BC Veenendaal

Nieuw bedrijf
Oktober 2025
Munnikenweg 43, 3905MD Veenendaal

Binnenkijken bij
Zondag 19-10-2025
Narcisstraat 39, 3905ZV Veenendaal

Binnenkijken bij
Zondag 19-10-2025
Nieuweweg 191, 3905LL Veenendaal

Direct een e-mail ontvangen bij nieuwe meldingen in deze regio?

Meld je dan GRATIS aan voor de Oozo Alert service voor 't Hoorntje

Instellen

Meer nieuws in 't Hoorntje

Weten hoe eenvoudig het is om af te vallen? Zonder pillen en smeersels en zonder je in het zweet te werken!
Kijk op eenvoudig-afvallen.nl

© 2012 - 2025 OOZO.nl - info@oozo.nl - Gegevens verwijderen? | Disclaimer | Privacy statement