Woning Middellaan 4 Veenendaal

Middellaan 4, 3904LH Veenendaal

Ontvang updates voor Petenbos

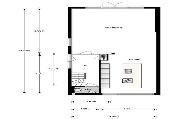
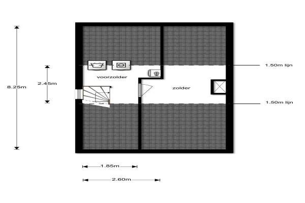
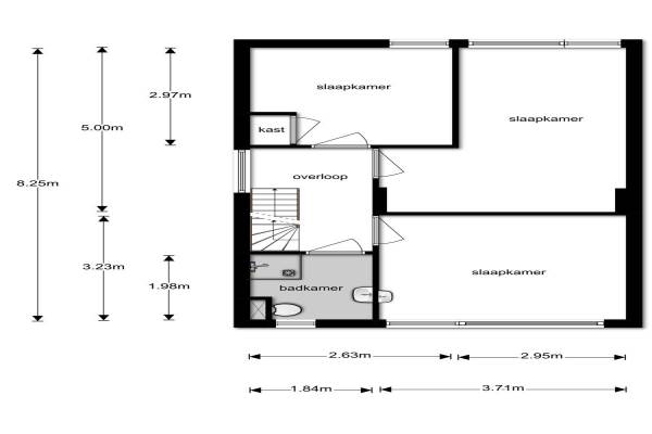
Het adres van deze woning uit 1958 is Middellaan 4 te Veenendaal. Het pand heeft een oppervlakte van 125m² en een perceeloppervlakte van 323m² en heeft 5 kamers kamers waarvan 4 slaapkamers. De geschatte waarde van deze woning is € 369.500.

Bekijk alle woningen in Petenbos

Gegevens van Eengezinswoning, 2-onder-1-kapwoning

Bouwjaar
1958
Geschatte waarde
€ 369.500
Oppervlakte
125 m2
Inhoud
373 m3
Aantal kamers
5 kamers
Slaapkamers
4
Badkamers
1 badkamer en 1 apart toilet
Soort bouw
Bestaande bouw
Eigendomssituatie
Volle eigendom
Ligging
In woonwijk
Tuin
Achtertuin, voortuin en zijtuin
Achtertuin
128 m² (15m diep en 8,5m breed)

Voorzieningen in de buurt

Boodschappen0,8 km
Grote supermarkt0,9 km
Cafetaria0,8 km
Restaurant1,1 km
Huisarts1,7 km
Ziekenhuis1,5 km
Kinderdagverblijf0,4 km
BSO0,4 km
Alle voorzieningen in Petenbos

Binnenkijken bij Middellaan 4 te Veenendaal

Meer meldingen in deze omgeving

Nieuw bedrijf
December 2025
Verwierdelaan 10, 3903DL Veenendaal

112 melding
Woensdag 3-12-2025 om 20:54
Mina Krusemansingel, Veenendaal

Binnenkijken bij
Zaterdag 29-11-2025
Kerkewijk 181, 3904JD Veenendaal

Binnenkijken bij
Dinsdag 25-11-2025
Bunzinglaan 13, 3903CS Veenendaal

Nieuw bedrijf
November 2025
Floralaan 5, 3904BX Veenendaal

Binnenkijken bij
Zondag 16-11-2025
Veenmos 10, 3904JV Veenendaal

Nieuw bedrijf
November 2025
Mina Krusemansingel 54, 3903WE Veenendaal

Nieuw bedrijf
November 2025
Abraham Heetveldlaan 5, 3903DC Veenendaal

Direct een e-mail ontvangen bij nieuwe meldingen in deze regio?

Meld je dan GRATIS aan voor de Oozo Alert service voor Petenbos

Instellen

Meer nieuws in Petenbos

Weten hoe eenvoudig het is om af te vallen? Zonder pillen en smeersels en zonder je in het zweet te werken!
Kijk op eenvoudig-afvallen.nl

© 2012 - 2025 OOZO.nl - info@oozo.nl - Gegevens verwijderen? | Disclaimer | Privacy statement