Woning Hermelijn 35 Veldhoven

Hermelijn 35, 5508ME Veldhoven

Ontvang updates voor De Kelen

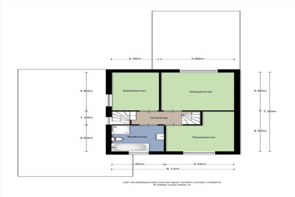
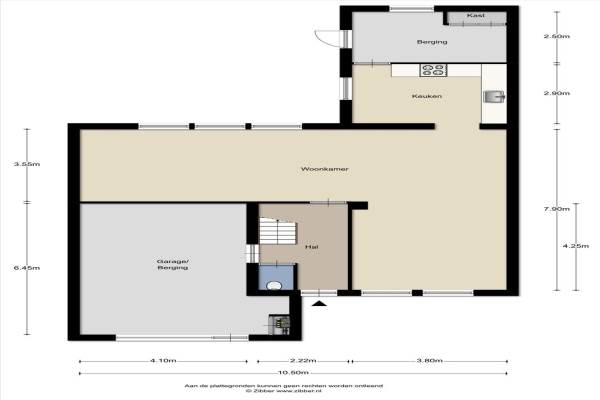
Het adres van deze woning uit 1992 is Hermelijn 35 te Veldhoven. Het pand heeft een oppervlakte van 125m² en een perceeloppervlakte van 281m² en heeft 5 kamers kamers waarvan 3 slaapkamers. De geschatte waarde van deze woning is € 365.000.

Bekijk alle woningen in De Kelen

Gegevens van Eengezinswoning, 2-onder-1-kapwoning

Bouwjaar
1992
Geschatte waarde
€ 365.000
Oppervlakte
125 m2
Inhoud
530 m3
Aantal kamers
5 kamers
Slaapkamers
3
Soort bouw
Bestaande bouw
Eigendomssituatie
Volle eigendom
Ligging
Aan rustige weg
Tuin
Achtertuin en voortuin
Achtertuin
121 m² (11m diep en 11m breed)

Voorzieningen in de buurt

Boodschappen1,0 km
Grote supermarkt1,0 km
Cafetaria1,0 km
Restaurant1,9 km
Huisarts1,0 km
Ziekenhuis4,5 km
Kinderdagverblijf0,6 km
BSO0,3 km
Alle voorzieningen in De Kelen

Binnenkijken bij Hermelijn 35 te Veldhoven

Meer meldingen in deze omgeving

Nieuw bedrijf
December 2025
Hermelijn 15, 5508ME Veldhoven

Nieuw bedrijf
December 2025
Vos 47, 5509RG Veldhoven

Nieuw bedrijf
December 2025
Fret 32, 5508MA Veldhoven

Nieuw bedrijf
December 2025
Kemphaan 71, 5508LD Veldhoven

Nieuw bedrijf
December 2025
Fret 32, 5508MA Veldhoven

Binnenkijken bij
Donderdag 4-12-2025
Vos 71, 5509RH Veldhoven

Nieuw bedrijf
December 2025
Fret 32, 5508MA Veldhoven

Nieuw bedrijf
December 2025
Fret 32, 5508MA Veldhoven

Direct een e-mail ontvangen bij nieuwe meldingen in deze regio?

Meld je dan GRATIS aan voor de Oozo Alert service voor De Kelen

Instellen

Meer nieuws in De Kelen

Weten hoe eenvoudig het is om af te vallen? Zonder pillen en smeersels en zonder je in het zweet te werken!
Kijk op eenvoudig-afvallen.nl

© 2012 - 2025 OOZO.nl - info@oozo.nl - Gegevens verwijderen? | Disclaimer | Privacy statement