Woning Karel Lotsyweg 22 Waalwijk

Karel Lotsyweg 22, 5143AA Waalwijk

Ontvang updates voor Antoniusparochie

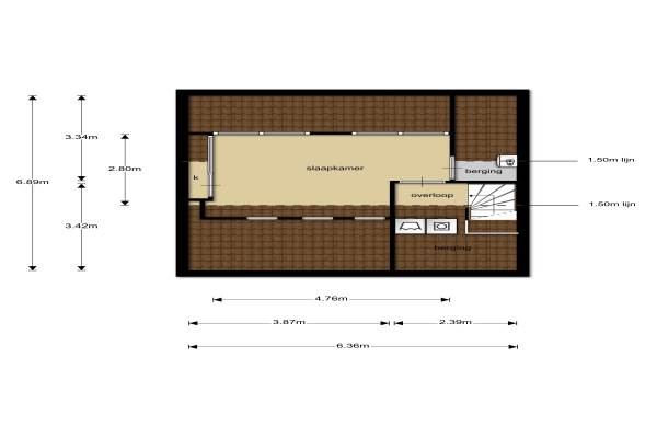
Het adres van deze woning uit 1969 is Karel Lotsyweg 22 te Waalwijk. Het pand heeft een oppervlakte van 108m² en een perceeloppervlakte van 148m² en heeft 5 kamers kamers waarvan 4 slaapkamers. De geschatte waarde van deze woning is € 215.000.

Bekijk alle woningen in Antoniusparochie

Gegevens van Eengezinswoning, hoekwoning

Bouwjaar
1969
Geschatte waarde
€ 215.000
Oppervlakte
108 m2
Inhoud
365 m3
Aantal kamers
5 kamers
Slaapkamers
4
Badkamers
1 badkamer en 1 apart toilet
Soort bouw
Bestaande bouw
Eigendomssituatie
Volle eigendom
Ligging
Aan rustige weg, in woonwijk en vrij uitzicht
Tuin
Achtertuin en voortuin
Achtertuin
71 m² (9,5m diep en 7,5m breed)

Voorzieningen in de buurt

Boodschappen0,2 km
Grote supermarkt0,3 km
Cafetaria0,3 km
Restaurant0,2 km
Huisarts0,5 km
Ziekenhuis1,9 km
Kinderdagverblijf0,4 km
BSO0,4 km
Alle voorzieningen in Antoniusparochie

Binnenkijken bij Karel Lotsyweg 22 te Waalwijk

Meer meldingen in deze omgeving

112 melding
Vrijdag 24-4-2026 om 15:47
St. Antoniusstraat, 5144AB Waalwijk

Nieuw bedrijf
April 2026
Vondelstraat 37, 5144AV Waalwijk

112 melding
Donderdag 23-4-2026 om 18:42
Dr. Ringersstraat, 5144RZ Waalwijk

112 melding
Donderdag 23-4-2026 om 06:40
Stijn Streuvelsstraat, 5144SL Waalwijk

112 melding
Woensdag 22-4-2026 om 20:01
Stijn Streuvelsstraat, 5144SL Waalwijk

112 melding
Woensdag 22-4-2026 om 08:42
Burgemeester Smeelelaan, 5144AP Waalwijk

112 melding
Woensdag 22-4-2026 om 08:42
Burgemeester Smeelelaan, 5144AP Waalwijk

112 melding
Woensdag 22-4-2026 om 08:42
Burgemeester Smeelelaan, 5144AP Waalwijk

Direct een e-mail ontvangen bij nieuwe meldingen in deze regio?

Meld je dan GRATIS aan voor de Oozo Alert service voor Antoniusparochie

Instellen

Meer nieuws in Antoniusparochie

Weten hoe eenvoudig het is om af te vallen? Zonder pillen en smeersels en zonder je in het zweet te werken!
Kijk op eenvoudig-afvallen.nl

© 2012 - 2026 OOZO.nl - info@oozo.nl - Gegevens verwijderen? | Disclaimer | Privacy statement