Woning J.Slauerhoffstraat 6 Weesp

J.Slauerhoffstraat 6, 1382RR Weesp

Ontvang updates voor Dichtersbuurt

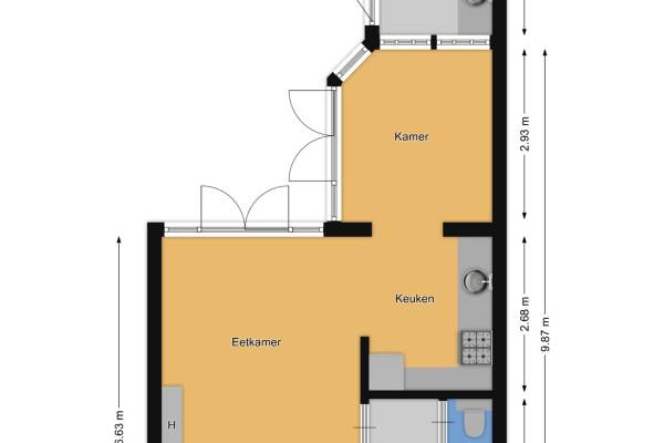
Het adres van deze woning uit 1959 is J.Slauerhoffstraat 6 te Weesp. Het pand heeft een oppervlakte van 107m² en een perceeloppervlakte van 183m² en heeft 5 kamers kamers waarvan 3 slaapkamers. De geschatte waarde van deze woning is € 469.000.

Bekijk alle woningen in Dichtersbuurt

Gegevens van Eengezinswoning, tussenwoning

Bouwjaar
1959
Geschatte waarde
€ 469.000
Oppervlakte
107 m2
Inhoud
387 m3
Aantal kamers
5 kamers
Slaapkamers
3
Badkamers
1 badkamer en 1 apart toilet
Soort bouw
Bestaande bouw
Eigendomssituatie
Volle eigendom
Ligging
Aan rustige weg, in woonwijk en vrij uitzicht
Tuin
Achtertuin en voortuin
Achtertuin
102 m² (17 meter diep en 6 meter breed)

Voorzieningen in de buurt

Boodschappen0,5 km
Grote supermarkt0,7 km
Cafetaria0,3 km
Restaurant0,2 km
Huisarts0,6 km
Ziekenhuis1,0 km
Kinderdagverblijf0,4 km
BSO0,4 km
Alle voorzieningen in Dichtersbuurt

Binnenkijken bij J.Slauerhoffstraat 6 te Weesp

Meer meldingen in deze omgeving

112 melding
Woensdag 26-11-2025 om 16:14
J.H.Leopoldhof, Weesp

Nieuw bedrijf
November 2025
E.du Perronstraat 24, 1382SZ Weesp

Binnenkijken bij
Dinsdag 25-11-2025
Jan Prinsstraat 54, 1382SR Weesp

Binnenkijken bij
Vrijdag 21-11-2025
Sportparklaan 3, 1382RV Weesp

Nieuw bedrijf
November 2025
M.Nijhoffstraat 112, 1382TT Weesp

112 melding
Donderdag 20-11-2025 om 15:23
Stationsplein, 1382AD Weesp

112 melding
Donderdag 20-11-2025 om 15:22
Stationsplein, 1382AD Weesp

112 melding
Donderdag 20-11-2025 om 15:21
Stationsplein, 1382AD Weesp

Direct een e-mail ontvangen bij nieuwe meldingen in deze regio?

Meld je dan GRATIS aan voor de Oozo Alert service voor Dichtersbuurt

Instellen

Meer nieuws in Dichtersbuurt

Weten hoe eenvoudig het is om af te vallen? Zonder pillen en smeersels en zonder je in het zweet te werken!
Kijk op eenvoudig-afvallen.nl

© 2012 - 2025 OOZO.nl - info@oozo.nl - Gegevens verwijderen? | Disclaimer | Privacy statement