Woning Frederik Hendrikstraat 6 Naaldwijk

Frederik Hendrikstraat 6, 2671GP Naaldwijk

Ontvang updates voor Naaldwijk Centrumgebied

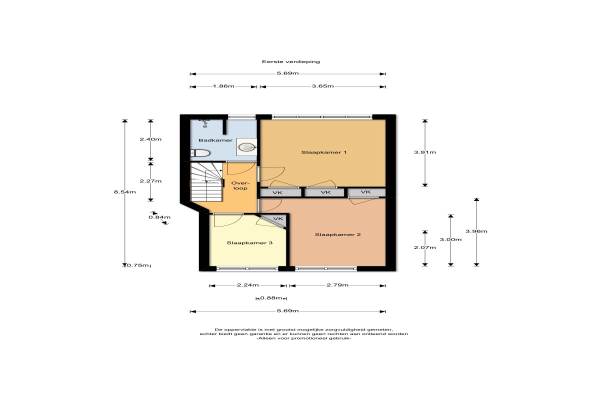
Het adres van deze woning uit 1938 is Frederik Hendrikstraat 6 te Naaldwijk. Het pand heeft een oppervlakte van 130m² en een perceeloppervlakte van 131m² en heeft 6 kamers kamers waarvan 5 slaapkamers. De geschatte waarde van deze woning is € 309.000.

Bekijk alle woningen in Naaldwijk Centrumgebied

Gegevens van Eengezinswoning, tussenwoning

Bouwjaar
1938
Geschatte waarde
€ 309.000
Oppervlakte
130 m2
Inhoud
469 m3
Aantal kamers
6 kamers
Slaapkamers
5
Badkamers
1 badkamer en 1 apart toilet
Soort bouw
Bestaande bouw
Eigendomssituatie
Volle eigendom
Tuin
Achtertuin en voortuin
Achtertuin
48 m² (8m diep en 6m breed)

Voorzieningen in de buurt

Boodschappen0,4 km
Grote supermarkt0,4 km
Cafetaria0,3 km
Restaurant0,4 km
Huisarts0,5 km
Ziekenhuis0,8 km
Kinderdagverblijf0,5 km
BSO0,5 km
Alle voorzieningen in Naaldwijk Centrumgebied

Binnenkijken bij Frederik Hendrikstraat 6 te Naaldwijk

Meer meldingen in deze omgeving

112 melding
Woensdag 12-11-2025 om 14:59
Stokdijkkade, Naaldwijk

112 melding
Woensdag 12-11-2025 om 14:53
De Tuinen, 2671NX Naaldwijk

Binnenkijken bij
Dinsdag 11-11-2025
Simon v Slingerlandtstraat 6A, 2671HV Naaldwijk

Nieuw bedrijf
November 2025
Secretaris Verhoeffweg 19E, 2671HT Naaldwijk

Nieuw bedrijf
November 2025
Frederik Hendrikstraat 24, 2671GP Naaldwijk

Nieuw bedrijf
November 2025
Kerkstraat 1, 2671HC Naaldwijk

112 melding
Dinsdag 11-11-2025 om 03:39
Prins Bernhardstraat, 2671ER Naaldwijk

112 melding
Maandag 10-11-2025 om 21:31
Anjerlaan, Naaldwijk

Direct een e-mail ontvangen bij nieuwe meldingen in deze regio?

Meld je dan GRATIS aan voor de Oozo Alert service voor Naaldwijk Centrumgebied

Instellen

Meer nieuws in Naaldwijk Centrumgebied

Weten hoe eenvoudig het is om af te vallen? Zonder pillen en smeersels en zonder je in het zweet te werken!
Kijk op eenvoudig-afvallen.nl

© 2012 - 2025 OOZO.nl - info@oozo.nl - Gegevens verwijderen? | Disclaimer | Privacy statement