Woning Witte Klaver 8 Naaldwijk

Witte Klaver 8, 2673BS Naaldwijk

Ontvang updates voor Woerdblok

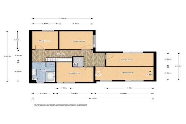
Het adres van deze woning uit 2006 is Witte Klaver 8 te Naaldwijk. Het pand heeft een oppervlakte van 159m² en een perceeloppervlakte van 293m² en heeft 7 kamers kamers waarvan 5 slaapkamers. De geschatte waarde van deze woning is € 515.000.

Bekijk alle woningen in Woerdblok

Gegevens van Eengezinswoning, halfvrijstaande woning

Bouwjaar
2006
Geschatte waarde
€ 515.000
Oppervlakte
159 m2
Inhoud
589 m3
Aantal kamers
7 kamers
Slaapkamers
5
Badkamers
1 badkamer en 1 apart toilet
Soort bouw
Bestaande bouw
Eigendomssituatie
Volle eigendom
Ligging
Aan rustige weg en in woonwijk
Tuin
Achtertuin, voortuin en zijtuin
Achtertuin
83 m² (7,5m diep en 11,09m breed)

Voorzieningen in de buurt

Boodschappen0,9 km
Grote supermarkt1,3 km
Cafetaria0,8 km
Restaurant1,3 km
Huisarts1,3 km
Ziekenhuis2,0 km
Kinderdagverblijf0,5 km
BSO0,4 km
Alle voorzieningen in Woerdblok

Binnenkijken bij Witte Klaver 8 te Naaldwijk

Meer meldingen in deze omgeving

Nieuw bedrijf
November 2025
Indische Oceaan 9, 2673CA Naaldwijk

Nieuw bedrijf
November 2025
De Linge 12, 2673BA Naaldwijk

112 melding
Zondag 23-11-2025 om 01:38
Griend, 2673CP Naaldwijk

112 melding
Zondag 23-11-2025 om 01:37
Griend, 2673CP Naaldwijk

Nieuw bedrijf
November 2025
Noordkaper 16, 2673CC Naaldwijk

112 melding
Donderdag 20-11-2025 om 08:53
Tanamihof, 2673GC Naaldwijk

Binnenkijken bij
Dinsdag 18-11-2025
Schiereiland 11, 2673CX Naaldwijk

Binnenkijken bij
Vrijdag 14-11-2025
Grijze Walvis 6, 2673CJ Naaldwijk

Direct een e-mail ontvangen bij nieuwe meldingen in deze regio?

Meld je dan GRATIS aan voor de Oozo Alert service voor Woerdblok

Instellen

Meer nieuws in Woerdblok

Weten hoe eenvoudig het is om af te vallen? Zonder pillen en smeersels en zonder je in het zweet te werken!
Kijk op eenvoudig-afvallen.nl

© 2012 - 2025 OOZO.nl - info@oozo.nl - Gegevens verwijderen? | Disclaimer | Privacy statement