Woning Stadburen 27 Nijelamer

Stadburen 27, 8487GJ Nijelamer

Ontvang updates voor Nijelamer

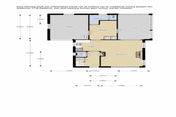
Het adres van deze woning uit 1953 is Stadburen 27 te Nijelamer. Het pand heeft een oppervlakte van 92m² en een perceeloppervlakte van 880m² en heeft 5 kamers kamers waarvan 3 slaapkamers. De geschatte waarde van deze woning is € 245.000.

Bekijk alle woningen in Nijelamer

Gegevens van Eengezinswoning, vrijstaande woning

Bouwjaar
1953
Geschatte waarde
€ 245.000
Oppervlakte
92 m2
Inhoud
378 m3
Aantal kamers
5 kamers
Slaapkamers
3
Badkamers
2 badkamers en 1 apart toilet
Soort bouw
Bestaande bouw
Eigendomssituatie
Volle eigendom
Ligging
Aan rustige weg en vrij uitzicht
Tuin
Achtertuin, voortuin, zijtuin en tuin rondom
Achtertuin
364 m² (14m diep en 26m breed)

Voorzieningen in de buurt

Boodschappen3,0 km
Grote supermarkt3,4 km
Cafetaria3,1 km
Restaurant2,0 km
Huisarts3,5 km
Ziekenhuis8,9 km
Kinderdagverblijf2,6 km
BSO2,8 km
Alle voorzieningen in Nijelamer

Binnenkijken bij Stadburen 27 te Nijelamer

Meer meldingen in deze omgeving

Binnenlands nieuws
Donderdag 11-9-2025
Nijelamer

Nieuw bedrijf
September 2025
Stadburen 16, 8487GJ Nijelamer


Binnenkijken bij
Vrijdag 27-6-2025
Stadburen 33, 8487GJ Nijelamer

Binnenlands nieuws
Donderdag 19-6-2025
Nijelamer

Schaatsnieuws
Woensdag 18-6-2025
Nijelamer

Binnenkijken bij
Vrijdag 21-3-2025
Hoofdweg 36A, 8487GL Nijelamer

Nieuw bedrijf
Maart 2025
Schipslootweg 13, 8487GK Nijelamer

Direct een e-mail ontvangen bij nieuwe meldingen in deze regio?

Meld je dan GRATIS aan voor de Oozo Alert service voor Nijelamer

Instellen

Meer nieuws in Nijelamer

Weten hoe eenvoudig het is om af te vallen? Zonder pillen en smeersels en zonder je in het zweet te werken!
Kijk op eenvoudig-afvallen.nl

© 2012 - 2025 OOZO.nl - info@oozo.nl - Gegevens verwijderen? | Disclaimer | Privacy statement