Woning Frans Halslaan 8 Loosdrecht

Frans Halslaan 8, 1231BC Loosdrecht

Ontvang updates voor Nieuw-Loosdrechtsedijk

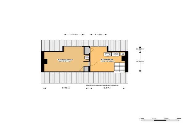
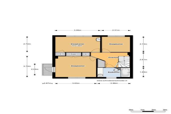
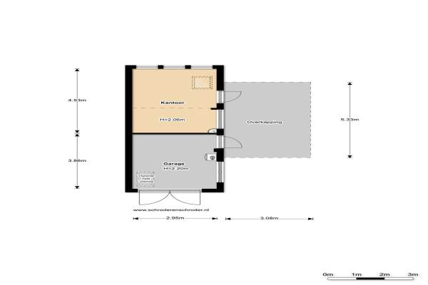
Het adres van deze woning uit 1957 is Frans Halslaan 8 te Loosdrecht. Het pand heeft een oppervlakte van 135m² en een perceeloppervlakte van 447m² en heeft 5 kamers kamers waarvan 4 slaapkamers. De geschatte waarde van deze woning is € 575.000.

Bekijk alle woningen in Nieuw-Loosdrechtsedijk

Gegevens van Eengezinswoning, 2-onder-1-kapwoning

Bouwjaar
1957
Geschatte waarde
€ 575.000
Oppervlakte
135 m2
Inhoud
465 m3
Aantal kamers
5 kamers
Slaapkamers
4
Badkamers
1 badkamer en 1 apart toilet
Soort bouw
Bestaande bouw
Eigendomssituatie
Volle eigendom
Ligging
Beschutte ligging en in woonwijk
Tuin
Achtertuin, voortuin en zijtuin
Achtertuin
196 m² (11,5m diep en 17m breed)

Voorzieningen in de buurt

Boodschappen0,4 km
Grote supermarkt0,7 km
Cafetaria0,5 km
Restaurant0,6 km
Huisarts0,8 km
Ziekenhuis6,0 km
Kinderdagverblijf0,5 km
BSO0,5 km
Alle voorzieningen in Nieuw-Loosdrechtsedijk

Binnenkijken bij Frans Halslaan 8 te Loosdrecht

Meer meldingen in deze omgeving

Binnenkijken bij
Zondag 10-5-2026
Nootweg 50, 1231CW Loosdrecht

Binnenkijken bij
Vrijdag 8-5-2026
Nieuw-Loosdrechtsedijk 306, 1231LJ Loosdrecht

112 melding
Woensdag 6-5-2026 om 14:15
Rading, 1231KB Loosdrecht

Binnenkijken bij
Dinsdag 5-5-2026
Tjalk 39, 1231TT Loosdrecht

Binnenkijken bij
Dinsdag 5-5-2026
Jan Steenlaan 22, 1231AE Loosdrecht

Binnenkijken bij
Dinsdag 5-5-2026
Nieuw-Loosdrechtsedijk 175, 1231KS Loosdrecht

Binnenkijken bij
Dinsdag 5-5-2026
Nieuw-Loosdrechtsedijk 198A, 1231LD Loosdrecht

Binnenkijken bij
Dinsdag 5-5-2026
Alewijnlaan 10, 1231VP Loosdrecht

Direct een e-mail ontvangen bij nieuwe meldingen in deze regio?

Meld je dan GRATIS aan voor de Oozo Alert service voor Nieuw-Loosdrechtsedijk

Instellen

Meer nieuws in Nieuw-Loosdrechtsedijk

Weten hoe eenvoudig het is om af te vallen? Zonder pillen en smeersels en zonder je in het zweet te werken!
Kijk op eenvoudig-afvallen.nl

© 2012 - 2026 OOZO.nl - info@oozo.nl - Gegevens verwijderen? | Disclaimer | Privacy statement