Woning Prins Hendrikkade 20 Woerden

Prins Hendrikkade 20, 3441XD Woerden

Ontvang updates voor Binnenstad

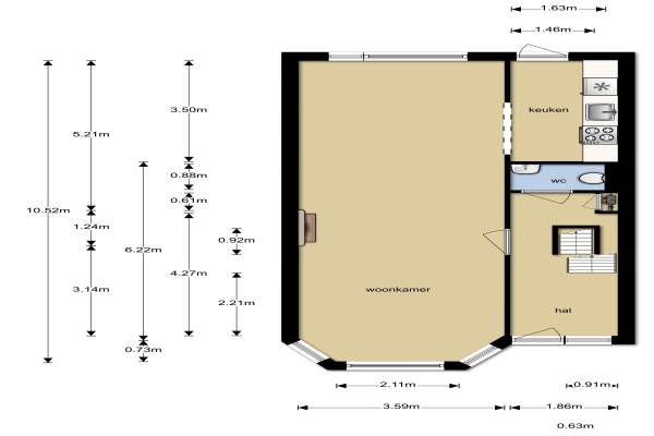
Het adres van deze woning uit 1923 is Prins Hendrikkade 20 te Woerden. Het pand heeft een oppervlakte van 129m² en een perceeloppervlakte van 117m² en heeft 4 kamers kamers waarvan 2 slaapkamers. De geschatte waarde van deze woning is € 389.000.

Bekijk alle woningen in Binnenstad

Gegevens van Herenhuis, tussenwoning

Bouwjaar
1923
Geschatte waarde
€ 389.000
Oppervlakte
129 m2
Inhoud
506 m3
Aantal kamers
4 kamers
Slaapkamers
2
Badkamers
1 badkamer en 1 apart toilet
Soort bouw
Bestaande bouw
Eigendomssituatie
Volle eigendom
Ligging
In centrum en aan vaarwater
Tuin
Achtertuin
Achtertuin
53 m² (9m diep en 5,9m breed)

Voorzieningen in de buurt

Boodschappen0,1 km
Grote supermarkt0,3 km
Cafetaria0,2 km
Restaurant0,1 km
Huisarts0,8 km
Ziekenhuis1,5 km
Kinderdagverblijf0,6 km
BSO0,6 km
Alle voorzieningen in Binnenstad

Binnenkijken bij Prins Hendrikkade 20 te Woerden

Meer meldingen in deze omgeving

Binnenkijken bij
Dinsdag 5-5-2026
Eendrachtstraat 14D, 3441AR Woerden

Binnenkijken bij
Dinsdag 5-5-2026
Van Oudheusdenstraat 10, 3441AM Woerden

Faillissement
Woensdag 29-4-2026
Rijnstraat 50, 3441BV Woerden

Faillissement
Vrijdag 17-4-2026
Kasteel 4, 3441BZ WOERDEN

Binnenkijken bij
Donderdag 16-4-2026
Wagenstraat 52, 3441BM Woerden

112 melding
Dinsdag 14-4-2026 om 09:27
Havenstraat, Woerden

112 melding
Dinsdag 14-4-2026 om 09:27
Havenstraat, Woerden

112 melding
Vrijdag 10-4-2026 om 20:52
Prins Hendrikkade, Binnenstad

Direct een e-mail ontvangen bij nieuwe meldingen in deze regio?

Meld je dan GRATIS aan voor de Oozo Alert service voor Binnenstad

Instellen

Meer nieuws in Binnenstad

Weten hoe eenvoudig het is om af te vallen? Zonder pillen en smeersels en zonder je in het zweet te werken!
Kijk op eenvoudig-afvallen.nl

© 2012 - 2026 OOZO.nl - info@oozo.nl - Gegevens verwijderen? | Disclaimer | Privacy statement