Woning Meulmansweg 10 Woerden

Meulmansweg 10, 3441AT Woerden

Ontvang updates voor Binnenstad

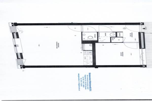
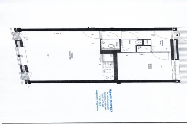
Het adres van deze woning uit 2008 is Meulmansweg 10 te Woerden. Het pand heeft een oppervlakte van 46m² en heeft 2 kamers kamers waarvan 1 slaapkamers. De geschatte waarde van deze woning is € 185.000.

Bekijk alle woningen in Binnenstad

Gegevens van Bovenwoning (appartement)

Bouwjaar
2008
Geschatte waarde
€ 185.000
Oppervlakte
46 m2
Inhoud
135 m3
Aantal kamers
2 kamers
Slaapkamers
1
Soort bouw
Bestaande bouw
Eigendomssituatie
Volle eigendom
Ligging
In centrum

Voorzieningen in de buurt

Boodschappen0,1 km
Grote supermarkt0,3 km
Cafetaria0,2 km
Restaurant0,1 km
Huisarts0,8 km
Ziekenhuis1,5 km
Kinderdagverblijf0,6 km
BSO0,6 km
Alle voorzieningen in Binnenstad

Binnenkijken bij Meulmansweg 10 te Woerden

Meer meldingen in deze omgeving

Faillissement
Vrijdag 17-4-2026
Kasteel 4, 3441BZ WOERDEN

Binnenkijken bij
Donderdag 16-4-2026
Wagenstraat 52, 3441BM Woerden

112 melding
Dinsdag 14-4-2026 om 09:27
Havenstraat, Woerden

112 melding
Dinsdag 14-4-2026 om 09:27
Havenstraat, Woerden

112 melding
Vrijdag 10-4-2026 om 20:52
Prins Hendrikkade, Binnenstad

Nieuw bedrijf
April 2026
Wilhelminaweg 14D, 3441XC Woerden

Nieuw bedrijf
April 2026
Kerkstraat 1A, 3441BN Woerden

Nieuw bedrijf
April 2026
Prins Hendrikkade 26, 3441XD Woerden

Direct een e-mail ontvangen bij nieuwe meldingen in deze regio?

Meld je dan GRATIS aan voor de Oozo Alert service voor Binnenstad

Instellen

Meer nieuws in Binnenstad

Weten hoe eenvoudig het is om af te vallen? Zonder pillen en smeersels en zonder je in het zweet te werken!
Kijk op eenvoudig-afvallen.nl

© 2012 - 2026 OOZO.nl - info@oozo.nl - Gegevens verwijderen? | Disclaimer | Privacy statement