Woning Rijnkade 90 Woerden

Rijnkade 90, 3442EE Woerden

Ontvang updates voor Bloemen- en Bomenkwartier

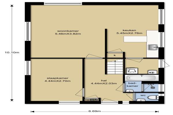
Het adres van deze woning uit 1975 is Rijnkade 90 te Woerden. Het pand heeft een oppervlakte van 116m² en een perceeloppervlakte van 536m² en heeft 6 kamers kamers waarvan 4 slaapkamers. De geschatte waarde van deze woning is € 495.000.

Bekijk alle woningen in Bloemen- en Bomenkwartier

Gegevens van Eengezinswoning, vrijstaande woning

Bouwjaar
1975
Geschatte waarde
€ 495.000
Oppervlakte
116 m2
Inhoud
446 m3
Aantal kamers
6 kamers
Slaapkamers
4
Soort bouw
Bestaande bouw
Eigendomssituatie
Volle eigendom
Ligging
Aan rustige weg, in woonwijk, vrij uitzicht, open ligging en aan vaarwater
Tuin
Voortuin, achtertuin en zijtuin
Achtertuin
165 m² (20m diep en 10m breed)

Voorzieningen in de buurt

Boodschappen0,4 km
Grote supermarkt0,7 km
Cafetaria0,3 km
Restaurant0,7 km
Huisarts0,4 km
Ziekenhuis2,2 km
Kinderdagverblijf0,4 km
BSO0,4 km
Alle voorzieningen in Bloemen- en Bomenkwartier

Binnenkijken bij Rijnkade 90 te Woerden

Meer meldingen in deze omgeving

112 melding
Dinsdag 21-4-2026 om 09:42
3e Honthorststraat, 3442CL Woerden

112 melding
Dinsdag 21-4-2026 om 09:41
3e Honthorststraat, 3442CL Woerden

112 melding
Dinsdag 21-4-2026 om 09:31
3e Honthorststraat, 3442CL Woerden

112 melding
Dinsdag 21-4-2026 om 09:23
3e Honthorststraat, 3442CL Woerden

Nieuw bedrijf
April 2026
Elzenlaan 31, 3442HV Woerden

Faillissement
Donderdag 16-4-2026
Hoge Rijndijk 9A, 3449HB Woerden

112 melding
Dinsdag 14-4-2026 om 14:57
Irisstraat, Woerden

112 melding
Dinsdag 14-4-2026 om 14:57
Irisstraat, Woerden

Direct een e-mail ontvangen bij nieuwe meldingen in deze regio?

Meld je dan GRATIS aan voor de Oozo Alert service voor Bloemen- en Bomenkwartier

Instellen

Meer nieuws in Bloemen- en Bomenkwartier

Weten hoe eenvoudig het is om af te vallen? Zonder pillen en smeersels en zonder je in het zweet te werken!
Kijk op eenvoudig-afvallen.nl

© 2012 - 2026 OOZO.nl - info@oozo.nl - Gegevens verwijderen? | Disclaimer | Privacy statement