Woning Heemskerklaan 14 Woerden

Heemskerklaan 14, 3445CM Woerden

Ontvang updates voor Staatsliedenkwartier

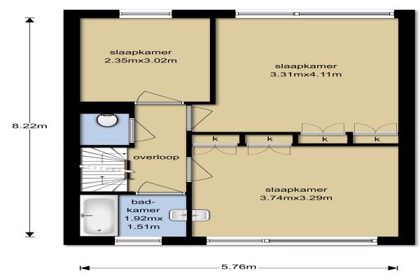
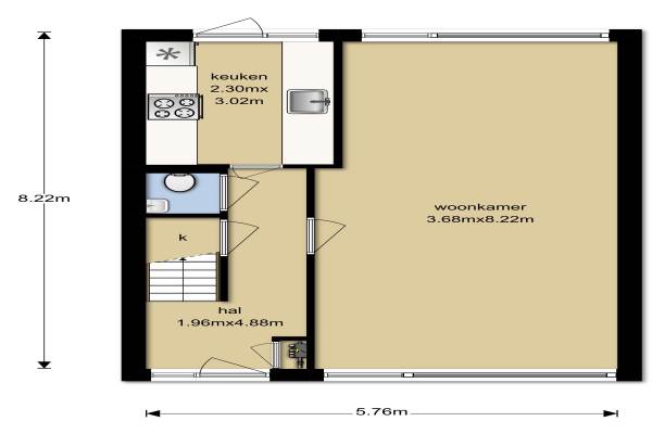
Het adres van deze woning uit 1972 is Heemskerklaan 14 te Woerden. Het pand heeft een oppervlakte van 119m² en een perceeloppervlakte van 149m² en heeft 6 kamers kamers waarvan 4 slaapkamers. De geschatte waarde van deze woning is € 290.000.

Bekijk alle woningen in Staatsliedenkwartier

Gegevens van Eengezinswoning, tussenwoning

Bouwjaar
1972
Geschatte waarde
€ 290.000
Oppervlakte
119 m2
Inhoud
382 m3
Aantal kamers
6 kamers
Slaapkamers
4
Soort bouw
Bestaande bouw
Eigendomssituatie
Volle eigendom
Ligging
Aan rustige weg en in woonwijk
Tuin
Achtertuin en voortuin
Achtertuin
66 m² (11m diep en 6m breed)

Voorzieningen in de buurt

Boodschappen0,8 km
Grote supermarkt0,5 km
Cafetaria0,4 km
Restaurant0,4 km
Huisarts0,6 km
Ziekenhuis1,7 km
Kinderdagverblijf0,5 km
BSO0,5 km
Alle voorzieningen in Staatsliedenkwartier

Binnenkijken bij Heemskerklaan 14 te Woerden

Meer meldingen in deze omgeving

Binnenkijken bij
Woensdag 19-11-2025
Heemskerklaan 7, 3445CM Woerden

Nieuw bedrijf
November 2025
Dr. Kuyperlaan 14, 3445CL Woerden

Binnenkijken bij
Zondag 16-11-2025
V.d. Duijn van Maasdamlaan 6, 3445CB Woerden

Binnenkijken bij
Vrijdag 14-11-2025
Adriaan Duyckpad 25, 3445VS Woerden

Nieuw bedrijf
November 2025
Van Hogendorplaan 63, 3445CH Woerden

Nieuw bedrijf
November 2025
De Savornin Lohmanlaan 26, 3445VE Woerden

Binnenkijken bij
Dinsdag 11-11-2025
Prof. Oudlaan 7, 3445CP Woerden

Binnenkijken bij
Dinsdag 11-11-2025
Prins Mauritssingel 20, 3445XA Woerden

Direct een e-mail ontvangen bij nieuwe meldingen in deze regio?

Meld je dan GRATIS aan voor de Oozo Alert service voor Staatsliedenkwartier

Instellen

Meer nieuws in Staatsliedenkwartier

Weten hoe eenvoudig het is om af te vallen? Zonder pillen en smeersels en zonder je in het zweet te werken!
Kijk op eenvoudig-afvallen.nl

© 2012 - 2025 OOZO.nl - info@oozo.nl - Gegevens verwijderen? | Disclaimer | Privacy statement