Woning Paardebloemweide 13 Woerden

Paardebloemweide 13, 3448TJ Woerden

Ontvang updates voor Molenvliet-West

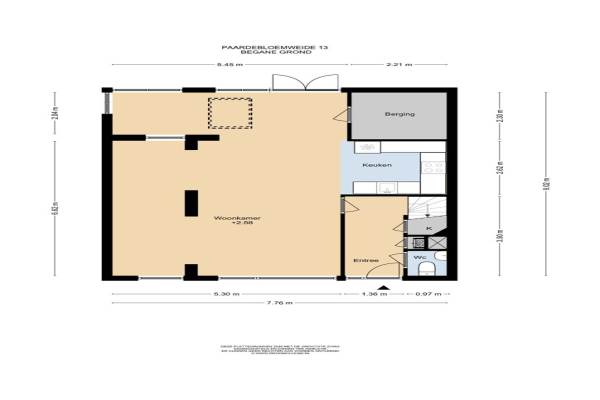
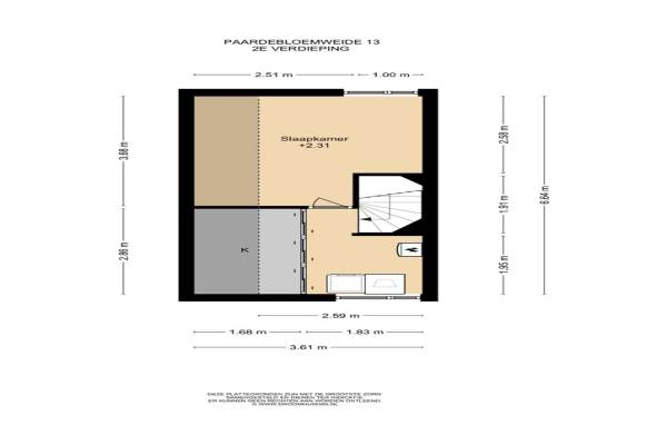
Het adres van deze woning uit 1981 is Paardebloemweide 13 te Woerden. Het pand heeft een oppervlakte van 139m² en een perceeloppervlakte van 234m² en heeft 5 kamers kamers waarvan 4 slaapkamers. De geschatte waarde van deze woning is € 425.000.

Bekijk alle woningen in Molenvliet-West

Gegevens van Eengezinswoning

Bouwjaar
1981
Geschatte waarde
€ 425.000
Oppervlakte
139 m2
Inhoud
451 m3
Aantal kamers
5 kamers
Slaapkamers
4
Badkamers
1 badkamer
Soort bouw
Bestaande bouw
Eigendomssituatie
Volle eigendom
Ligging
Aan rustige weg en in woonwijk
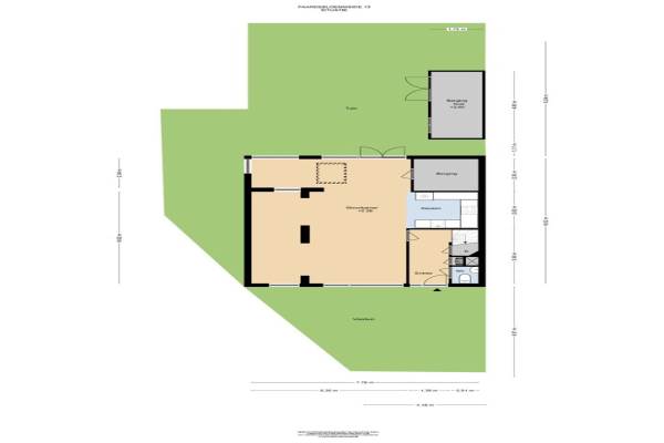
Tuin
Tuin
Achtertuin
64 m² (8,24 meter diep en 7,76 meter breed)

Voorzieningen in de buurt

Boodschappen1,7 km
Grote supermarkt1,7 km
Cafetaria1,7 km
Restaurant1,7 km
Huisarts1,8 km
Ziekenhuis3,5 km
Kinderdagverblijf0,7 km
BSO0,7 km
Alle voorzieningen in Molenvliet-West

Binnenkijken bij Paardebloemweide 13 te Woerden

Meer meldingen in deze omgeving

Binnenkijken bij
Zondag 25-1-2026
Bakboordlaan 5, 3448KG Woerden

Nieuw bedrijf
Januari 2026
Vaartuigenlaan 47, 3448WL Woerden

Binnenkijken bij
Vrijdag 16-1-2026
Molenvlietbrink 175, 3448HT Woerden

Binnenkijken bij
Vrijdag 16-1-2026
Molenvlietbrink 95, 3448HT Woerden

Binnenkijken bij
Donderdag 15-1-2026
Brander 2, 3448KE Woerden

Binnenkijken bij
Vrijdag 9-1-2026
Sleper 32, 3448WJ Woerden

Binnenkijken bij
Zaterdag 3-1-2026
Boterbloemweide 68, 3448HX Woerden

Binnenkijken bij
Donderdag 1-1-2026
Weidebloemenlaan 131, 3448HC Woerden

Direct een e-mail ontvangen bij nieuwe meldingen in deze regio?

Meld je dan GRATIS aan voor de Oozo Alert service voor Molenvliet-West

Instellen

Meer nieuws in Molenvliet-West

Weten hoe eenvoudig het is om af te vallen? Zonder pillen en smeersels en zonder je in het zweet te werken!
Kijk op eenvoudig-afvallen.nl

© 2012 - 2026 OOZO.nl - info@oozo.nl - Gegevens verwijderen? | Disclaimer | Privacy statement