Woning Bomschuit 12* Woerden

Bomschuit 12*, 3448WG Woerden

Ontvang updates voor Molenvliet-West

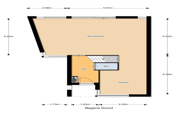
Het adres van deze woning uit 1993 is Bomschuit 12* te Woerden. Het pand heeft een oppervlakte van 135m² en een perceeloppervlakte van 217m² en heeft 4 kamers kamers waarvan 3 slaapkamers. De geschatte waarde van deze woning is € 435.000.

Bekijk alle woningen in Molenvliet-West

Gegevens van Eengezinswoning, 2-onder-1-kapwoning

Bouwjaar
1993
Geschatte waarde
€ 435.000
Oppervlakte
135 m2
Inhoud
540 m3
Aantal kamers
4 kamers
Slaapkamers
3
Badkamers
1 badkamer en 1 apart toilet
Soort bouw
Bestaande bouw
Eigendomssituatie
Volle eigendom
Ligging
In woonwijk
Tuin
Achtertuin en voortuin
Achtertuin
90 m² (9m diep en 10m breed)

Voorzieningen in de buurt

Boodschappen1,7 km
Grote supermarkt1,7 km
Cafetaria1,7 km
Restaurant1,7 km
Huisarts1,8 km
Ziekenhuis3,5 km
Kinderdagverblijf0,7 km
BSO0,7 km
Alle voorzieningen in Molenvliet-West

Binnenkijken bij Bomschuit 12* te Woerden

Meer meldingen in deze omgeving

Binnenkijken bij
Donderdag 1-1-2026
Weidebloemenlaan 131, 3448HC Woerden

Nieuw bedrijf
Januari 2026
Madeliefweide 249, 3448TW Woerden

Nieuw bedrijf
Januari 2026
Klaproosweide 81, 3448JJ Woerden

Nieuw bedrijf
Januari 2026
Wederikveld 4, 3448GH Woerden

Nieuw bedrijf
Januari 2026
Weidebloemenlaan 159, 3448HC Woerden

Binnenkijken bij
Woensdag 31-12-2025
Weidebloemenlaan 151, 3448HC Woerden

Binnenkijken bij
Woensdag 31-12-2025
Veldbloemenlaan 30, 3448GM Woerden

112 melding
Vrijdag 19-12-2025 om 21:32
Fluitekruidweide, Woerden

Direct een e-mail ontvangen bij nieuwe meldingen in deze regio?

Meld je dan GRATIS aan voor de Oozo Alert service voor Molenvliet-West

Instellen

Meer nieuws in Molenvliet-West

Weten hoe eenvoudig het is om af te vallen? Zonder pillen en smeersels en zonder je in het zweet te werken!
Kijk op eenvoudig-afvallen.nl

© 2012 - 2026 OOZO.nl - info@oozo.nl - Gegevens verwijderen? | Disclaimer | Privacy statement