Woning Haagwindeveld 63 Woerden

Haagwindeveld 63, 3448EL Woerden

Ontvang updates voor Molenvliet-West

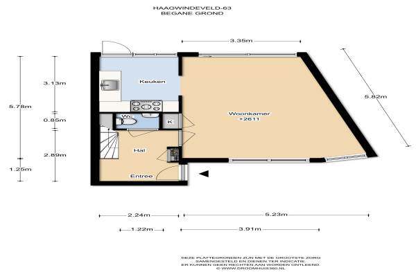
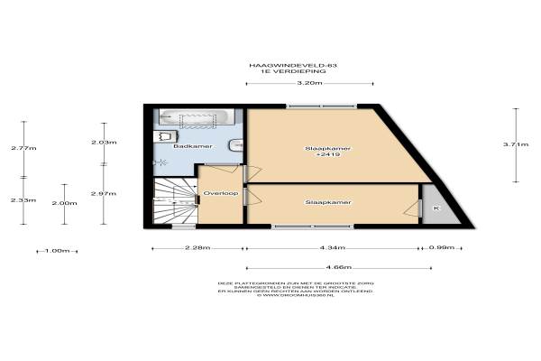
Het adres van deze woning uit 1983 is Haagwindeveld 63 te Woerden. Het pand heeft een oppervlakte van 108m² en een perceeloppervlakte van 165m² en heeft 4 kamers kamers waarvan 3 slaapkamers. De geschatte waarde van deze woning is € 257.500.

Bekijk alle woningen in Molenvliet-West

Gegevens van Eengezinswoning, tussenwoning

Bouwjaar
1983
Geschatte waarde
€ 257.500
Oppervlakte
108 m2
Inhoud
359 m3
Aantal kamers
4 kamers
Slaapkamers
3
Soort bouw
Bestaande bouw
Eigendomssituatie
Volle eigendom
Ligging
In woonwijk
Tuin
Voortuin en achtertuin
Achtertuin
M² (0,01m diep en 0,01m breed)

Voorzieningen in de buurt

Boodschappen1,7 km
Grote supermarkt1,7 km
Cafetaria1,7 km
Restaurant1,7 km
Huisarts1,8 km
Ziekenhuis3,5 km
Kinderdagverblijf0,7 km
BSO0,7 km
Alle voorzieningen in Molenvliet-West

Binnenkijken bij Haagwindeveld 63 te Woerden

Meer meldingen in deze omgeving

Binnenkijken bij
Vrijdag 13-2-2026
Molenvlietbrink 195, 3448HT Woerden

Binnenkijken bij
Vrijdag 13-2-2026
Molenvlietbrink 113, 3448HT Woerden

Binnenkijken bij
Vrijdag 13-2-2026
Molenvlietbrink 141, 3448HT Woerden

Binnenkijken bij
Donderdag 5-2-2026
Boterbloemweide 86, 3448HX Woerden

Binnenkijken bij
Zondag 1-2-2026
Fluitekruidweide 33, 3448JA Woerden

Binnenkijken bij
Woensdag 28-1-2026
Vogelwikkeveld 16, 3448ER Woerden

Binnenkijken bij
Zondag 25-1-2026
Bakboordlaan 5, 3448KG Woerden

Nieuw bedrijf
Januari 2026
Vaartuigenlaan 47, 3448WL Woerden

Direct een e-mail ontvangen bij nieuwe meldingen in deze regio?

Meld je dan GRATIS aan voor de Oozo Alert service voor Molenvliet-West

Instellen

Meer nieuws in Molenvliet-West

Weten hoe eenvoudig het is om af te vallen? Zonder pillen en smeersels en zonder je in het zweet te werken!
Kijk op eenvoudig-afvallen.nl

© 2012 - 2026 OOZO.nl - info@oozo.nl - Gegevens verwijderen? | Disclaimer | Privacy statement