Woning Vaartuigenlaan 32 Woerden

Vaartuigenlaan 32, 3448KM Woerden

Ontvang updates voor Molenvliet-West

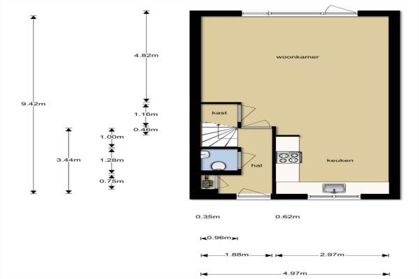
Het adres van deze woning uit 1987 is Vaartuigenlaan 32 te Woerden. Het pand heeft een oppervlakte van 118m² en een perceeloppervlakte van 125m² en heeft 4 kamers kamers waarvan 3 slaapkamers. De geschatte waarde van deze woning is € 290.000.

Bekijk alle woningen in Molenvliet-West

Gegevens van Eengezinswoning, tussenwoning

Bouwjaar
1987
Geschatte waarde
€ 290.000
Oppervlakte
118 m2
Inhoud
432 m3
Aantal kamers
4 kamers
Slaapkamers
3
Soort bouw
Bestaande bouw
Eigendomssituatie
Volle eigendom
Ligging
In woonwijk
Tuin
Achtertuin en voortuin
Achtertuin
50 m² (10m diep en 5m breed)

Voorzieningen in de buurt

Boodschappen1,7 km
Grote supermarkt1,7 km
Cafetaria1,7 km
Restaurant1,7 km
Huisarts1,8 km
Ziekenhuis3,5 km
Kinderdagverblijf0,7 km
BSO0,7 km
Alle voorzieningen in Molenvliet-West

Binnenkijken bij Vaartuigenlaan 32 te Woerden

Meer meldingen in deze omgeving

Binnenkijken bij
Zondag 25-1-2026
Bakboordlaan 5, 3448KG Woerden

Nieuw bedrijf
Januari 2026
Vaartuigenlaan 47, 3448WL Woerden

Binnenkijken bij
Vrijdag 16-1-2026
Molenvlietbrink 175, 3448HT Woerden

Binnenkijken bij
Vrijdag 16-1-2026
Molenvlietbrink 95, 3448HT Woerden

Binnenkijken bij
Donderdag 15-1-2026
Brander 2, 3448KE Woerden

Binnenkijken bij
Vrijdag 9-1-2026
Sleper 32, 3448WJ Woerden

Binnenkijken bij
Zaterdag 3-1-2026
Boterbloemweide 68, 3448HX Woerden

Binnenkijken bij
Donderdag 1-1-2026
Weidebloemenlaan 131, 3448HC Woerden

Direct een e-mail ontvangen bij nieuwe meldingen in deze regio?

Meld je dan GRATIS aan voor de Oozo Alert service voor Molenvliet-West

Instellen

Meer nieuws in Molenvliet-West

Weten hoe eenvoudig het is om af te vallen? Zonder pillen en smeersels en zonder je in het zweet te werken!
Kijk op eenvoudig-afvallen.nl

© 2012 - 2026 OOZO.nl - info@oozo.nl - Gegevens verwijderen? | Disclaimer | Privacy statement