Woning de Ruyterstraat 11 Zandvoort

de Ruyterstraat 11, 2041HP Zandvoort

Ontvang updates voor Boulevard Noord

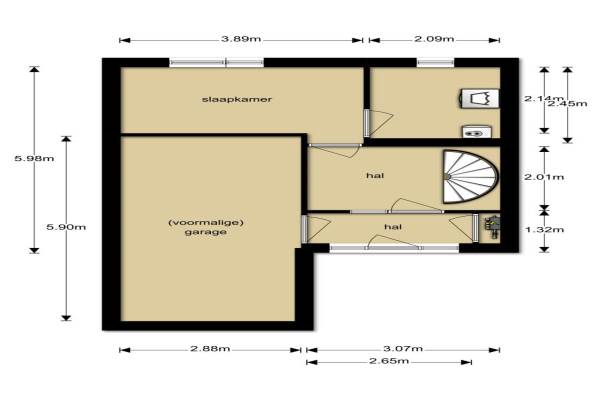
Het adres van deze woning uit 1990 is de Ruyterstraat 11 te Zandvoort. Het pand heeft een oppervlakte van 124m² en een perceeloppervlakte van 145m² en heeft 5 kamers kamers waarvan 4 slaapkamers. De geschatte waarde van deze woning is € 375.000.

Bekijk alle woningen in Boulevard Noord

Gegevens van Eengezinswoning, hoekwoning (drive-in woning)

Bouwjaar
1990
Geschatte waarde
€ 375.000
Oppervlakte
124 m2
Inhoud
476 m3
Aantal kamers
5 kamers
Slaapkamers
4
Badkamers
1 badkamer en 1 apart toilet
Soort bouw
Bestaande bouw
Eigendomssituatie
Volle eigendom
Ligging
Aan rustige weg en in woonwijk
Tuin
Achtertuin en zijtuin
Achtertuin
45 m² (5m diep en 9m breed)

Voorzieningen in de buurt

Boodschappen0,5 km
Grote supermarkt0,7 km
Cafetaria0,6 km
Restaurant0,4 km
Huisarts1,2 km
Ziekenhuis8,5 km
Kinderdagverblijf1,0 km
BSO1,0 km
Alle voorzieningen in Boulevard Noord

Binnenkijken bij de Ruyterstraat 11 te Zandvoort

Meer meldingen in deze omgeving

Nieuw bedrijf
December 2025
Tjerk Hiddesstraat 104, 2041JN Zandvoort

Binnenkijken bij
Donderdag 11-12-2025
Tjerk Hiddesstraat 8F2, 2041JM Zandvoort

Binnenkijken bij
Woensdag 10-12-2025
de Ruyterstraat 4F2, 2041HJ Zandvoort

Binnenkijken bij
Woensdag 3-12-2025
de Ruyterstraat 4F1, 2041HJ Zandvoort

112 melding
Maandag 1-12-2025 om 11:39
Dr. Joh G Mezgerstraat, Zandvoort

Binnenkijken bij
Vrijdag 28-11-2025
Ir E J J Kuindersstraat 11F1, 2041AE Zandvoort

112 melding
Woensdag 26-11-2025 om 19:31
Ir E J J Kuindersstraat, 2041AE Zandvoort

Binnenkijken bij
Vrijdag 21-11-2025
Burgemeester van Alphenstraat 59F6, 2041KE Zandvoort

Direct een e-mail ontvangen bij nieuwe meldingen in deze regio?

Meld je dan GRATIS aan voor de Oozo Alert service voor Boulevard Noord

Instellen

Meer nieuws in Boulevard Noord

Weten hoe eenvoudig het is om af te vallen? Zonder pillen en smeersels en zonder je in het zweet te werken!
Kijk op eenvoudig-afvallen.nl

© 2012 - 2025 OOZO.nl - info@oozo.nl - Gegevens verwijderen? | Disclaimer | Privacy statement